Кировский Завод
-
Den.S
- Сообщения: 4446
- Зарегистрирован: 30 апр 2009, 20:14
- Станция метро: Кировский Завод
- Контактная информация:
-
Lekseika
- Сообщения: 29
- Зарегистрирован: 30 окт 2022, 07:24
- Станция метро: Проспект Ветеранов
Re: Кировский Завод
На Кировском в поперечной камере все отчетливее слышна проходка
-
alex78rus
- Сообщения: 289
- Зарегистрирован: 28 янв 2010, 10:16
- Станция метро: Автово
Re: Кировский Завод
Сегодня утром (пару минут назад) обратил внимание на то, что в торце станции стали появляться металлические конструкции.
Как понимаю это подготовка к строительству перехода?
Как понимаю это подготовка к строительству перехода?
-
Чау-чау
- Сообщения: 2589
- Зарегистрирован: 26 ноя 2011, 19:20
- Станция метро: Шкиперская
-
Cypok
- Сообщения: 1921
- Зарегистрирован: 29 мар 2006, 15:52
- Контактная информация:
Re: Кировский Завод
К видимому строительству со стороны Кировского. Со стороны Путиловской вовсю идёт работа по проходке.это подготовка к строительству перехода?
Ну так сразу и не скажешь... да и вообще не люблю о себе говорить... скромный видно...
- в40
- Профессионал

- Сообщения: 14816
- Зарегистрирован: 05 фев 2009, 19:46
- Станция метро: Проспект Большевиков
- Откуда: Дачное
Re: Кировский Завод
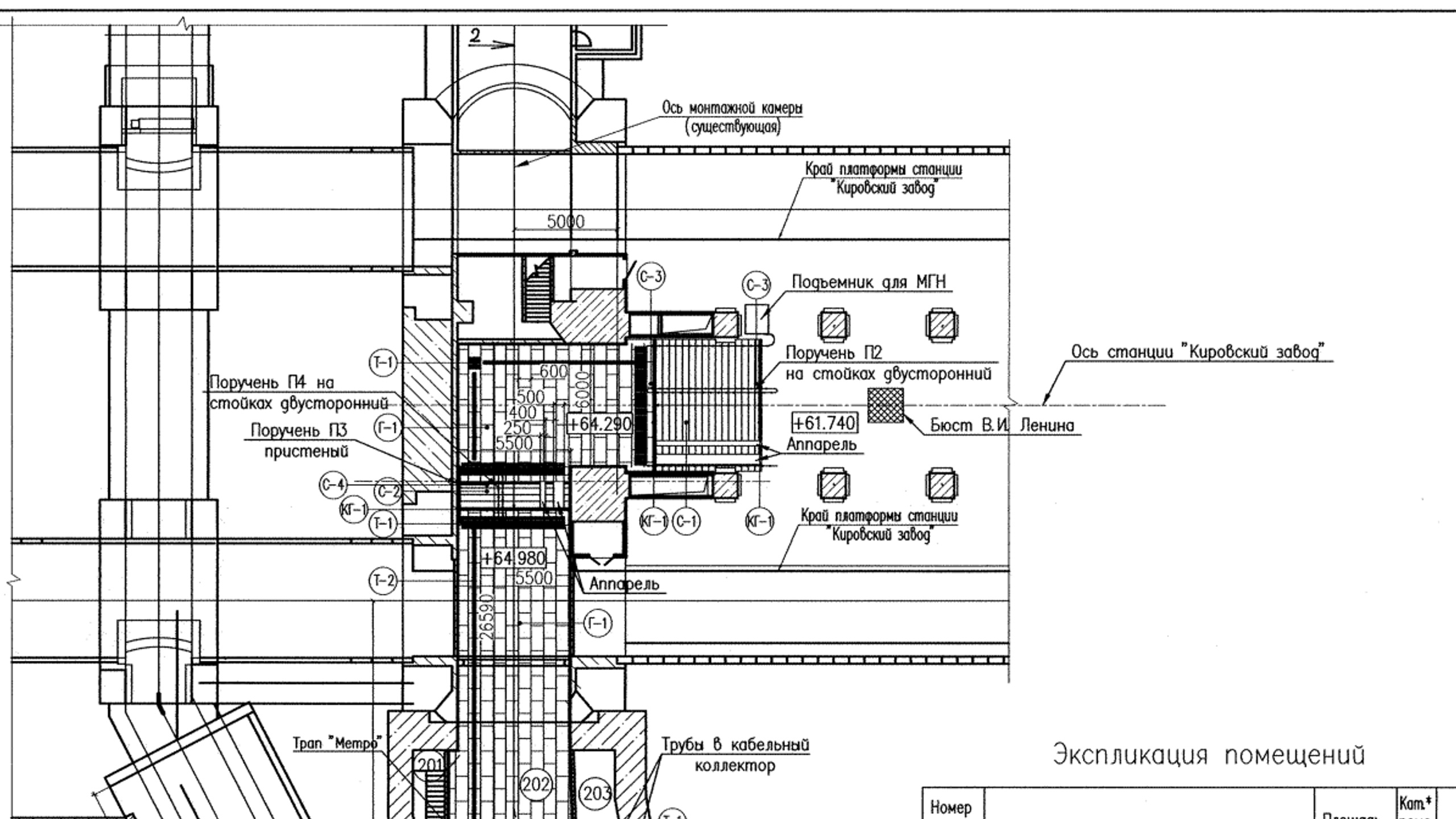
Ограждение строительной площадки для сооружения лестничных спусков.
О=О=О=О=О=О=О=О=О=О=О=О=О=О=О=О=О=О=О
-
Чау-чау
- Сообщения: 2589
- Зарегистрирован: 26 ноя 2011, 19:20
- Станция метро: Шкиперская
-
Cypok
- Сообщения: 1921
- Зарегистрирован: 29 мар 2006, 15:52
- Контактная информация:
Re: Кировский Завод
Из комментов в чате Подземника: https://t.me/c/1792427918/89690.
Ну так сразу и не скажешь... да и вообще не люблю о себе говорить... скромный видно...
- Иван Волков
- Сообщения: 644
- Зарегистрирован: 11 фев 2006, 16:41
- Станция метро: Дунайская
Re: Кировский Завод
Я так и не понял. За Лениным располагается декоративная арка в стене. Так вот, эта арка сохранится, или будет демонтирована?
- Maxx Shab
- Сообщения: 594
- Зарегистрирован: 03 мар 2018, 08:05
- Станция метро: Удельная
- Откуда: Хабаровск
- telegram: https://t.me/mxxshb
Re: Кировский Завод
Разберут, конечно же
- Иван Волков
- Сообщения: 644
- Зарегистрирован: 11 фев 2006, 16:41
- Станция метро: Дунайская
Re: Кировский Завод
Жаль, она красивая, и смотрелась бы даже с переходом далее. Надеюсь, что в реальности станцию не так сильно изуродуют в ходе реконструкции.
Лёгкая лестница в центре, конечно, была бы лучше...
Лёгкая лестница в центре, конечно, была бы лучше...
- в40
- Профессионал

- Сообщения: 14816
- Зарегистрирован: 05 фев 2009, 19:46
- Станция метро: Проспект Большевиков
- Откуда: Дачное
Re: Кировский Завод
Эта декоративная арка с боковыми простенками сужает ширину прохода. Более метра с каждой стороны. На фото это хорошо видно.
Двери в служебные помещения, которые находятся в торцевой стене, после сооружения лестничного марша будут располагаться под плитой мостика. Если оставить арку - будет очень тесно.
Двери в служебные помещения, которые находятся в торцевой стене, после сооружения лестничного марша будут располагаться под плитой мостика. Если оставить арку - будет очень тесно.
О=О=О=О=О=О=О=О=О=О=О=О=О=О=О=О=О=О=О
- darkglare
- Сообщения: 2138
- Зарегистрирован: 26 ноя 2006, 07:31
- Станция метро: Автово
- Откуда: Питер
Re: Кировский Завод
а где будет начинаться лестничный подъем? сразу за колонной последнего проема? тогда довольно крутая лестница выходит. или последний проем заделают фальш-стеной и будет обустроен более плавный подъем?
-
Den.S
- Сообщения: 4446
- Зарегистрирован: 30 апр 2009, 20:14
- Станция метро: Кировский Завод
- Контактная информация:
-
AlexandrIvanov
- Сообщения: 472
- Зарегистрирован: 18 янв 2018, 17:03
- Станция метро: Московские Ворота
Re: Кировский Завод
Интересно, а рассматривался ли вариант лестничных маршей в центре зала, как на Маяковской?