Мотовозы, служебные вагоны (участок МРТ)
Модератор: Nomernoy
- ASR82
- Сообщения: 469
- Зарегистрирован: 28 янв 2006, 01:27
- Откуда: Пушкин
- Контактная информация:
- Nomernoy
- Профессионал

- Сообщения: 5200
- Зарегистрирован: 10 окт 2005, 16:25
- Станция метро: Театральная
- Откуда: Санкт-Петербург
- Г. Фропткинг
- Сообщения: 733
- Зарегистрирован: 14 мар 2008, 17:46
- last_fm: Froptking
- Откуда: Комендана
Re: хоз_поезда
вот у меня такой вопрос накопился,
Ведь кузов вагона, вроде, несущий, и если срезать часть его под грузовой, жесткость конструкции уменьшится
Увеличивают ли дополнительно жесткость кузовов грузовых вагонов?
Ведь кузов вагона, вроде, несущий, и если срезать часть его под грузовой, жесткость конструкции уменьшится
Увеличивают ли дополнительно жесткость кузовов грузовых вагонов?
Неуспеешь расписать конкретный недостаток, а уже нашли способ его устранения. ©
ТМХ создало бла-бла-бла. Ребята оказались не только мечтателями, но и прагматиками. ©
как хорошо жить в стане эльфов.
ТМХ создало бла-бла-бла. Ребята оказались не только мечтателями, но и прагматиками. ©
как хорошо жить в стане эльфов.
- mx
- Профессионал

- Сообщения: 4138
- Зарегистрирован: 14 сен 2005, 21:32
- Станция метро: -------
- Откуда: 59`50N 30`25E
Re: хоз_поезда
Сам кузов особой нагрузки не несёт, несущими являются хребтовые балки, которые через подпятник и шкворень непосредственно на тележки опираются. Поэтому специально грузовые вагоны не усилены, только настлан металлический пол и установлен движущийся транспортёр, на котором груз перевозят.
Всё потому, что кто-то слишком много ест!
- Nomernoy
- Профессионал

- Сообщения: 5200
- Зарегистрирован: 10 окт 2005, 16:25
- Станция метро: Театральная
- Откуда: Санкт-Петербург
- Stranix
- Сообщения: 914
- Зарегистрирован: 24 окт 2006, 16:42
- Станция метро: Коломяжская
- Откуда: Санкт-Петербург, Долгое озеро
- darkglare
- Сообщения: 2146
- Зарегистрирован: 26 ноя 2006, 07:31
- Станция метро: Автово
- Откуда: Питер
-
DOLBY
- Сообщения: 39
- Зарегистрирован: 22 сен 2007, 16:39
- Станция метро: Елизаровская
- Откуда: Санкт-Петербург
- Alex Gleys
- Сообщения: 327
- Зарегистрирован: 11 июн 2004, 08:39
- Станция метро: Ручьи
- Откуда: SPb
- Контактная информация:
- EvgeniyAnd
- Сообщения: 305
- Зарегистрирован: 24 фев 2008, 21:43
- Станция метро: Невский Проспект
- Откуда: СПб
Путеизмеритель на базе "номерного"
Отдельной темы про путеизмерители поиск не показывает, а это - самая живая из аналогичных. Так, вот, к чему это я...
Скачав конкурсную документацию, я (ничего не понимающий в ПС) обратил внимание на следующее:
1 Вагон - путеизмеритель должен быть изготовлен на базе вагона метрополитена типа 81-714 со шпинтонными тележками.
2. Вагон-путеизмеритель должен работать промежуточным вагоном в составе из 5 – 6 (включая сам вагон путеизмеритель) вагонов метрополитена типа Е, Ем, включая сам вагон – путеизмеритель.
3. В салоне вагона необходимо демонтировать: диваны, поручни, пол, дверную пневмомагистраль, при необходимости, демонтируется облицовка стен, пневматическое и электрическое оборудование, находящиеся под диванами, которое переносится под кузов вагона или закрывается кожухами. Четыре боковые двери салона в шахматном порядке должны быть заблокированы, а проемы закрыты металлическим листом и заварены.
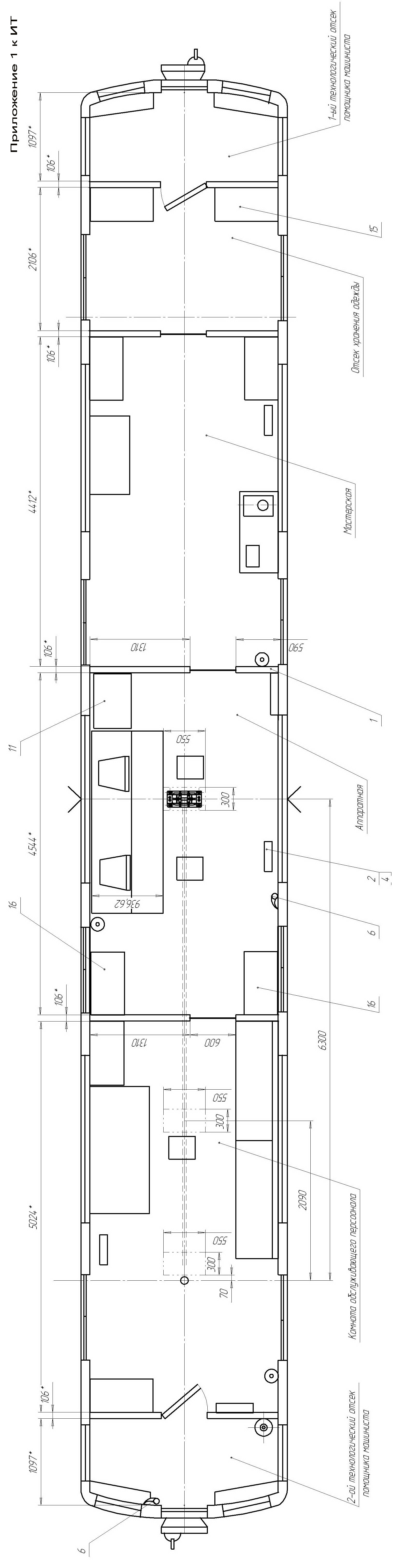
4. Кузов вагона должен быть разделён на шесть отсеков поперечными перегородками:
-1-ый технологический отсек помощника машиниста;
-отсек хранения одежды;
-мастерская;
-аппаратная;
-комната обслуживающего персонала;
-2-ой технологический отсек помощника машиниста.
5. Равномерно, по всему полу вагона, включая кабины машиниста, должен быть уложен балласт, общим весом 14 тонн.
6. Конструкция вагона, оборудование и механизмы должны обеспечивать надежную и безопасную работу в течение 10 лет
7. Внешний вид, форма и отделка вагона-путеизмерителя должны отвечать современным тенденциям технической эстетики на железнодорожном транспорте. [А НИП - это современная техническая эстетика?]
8. Вагон-путеизмеритель должен эксплуатироваться в составе не менее чем из пяти вагонов, включая сам вагон-путеизмеритель.
9. Наружная окраска вагона-путеизмерителя должна соответствовать типовой наружной окраске вагона-путеизмерителя.
10. Вагон-путеизмеритель должен работать на линии, по утверждённому графику не нарушая движения поездов. Рабочая и транспортная скорость следования от 0 до 80 км/час. Рабочая скорость следования по стрелочным переводам до 30 км/час. При прохождении по глухим пересечениям и перекрестным съездам, измерительные и отводные ролики или лыжи тележек механизмов шаблона и рихтовки выключаются (отводятся).
11. Транспортирование вагона-путеизмерителя по линиям метрополитена должно производиться в составе поезда метрополитена, имеющего не менее четырёх моторных вагонов.
Что меня удивило: почему всего 10 лет?! Особенно учитывая, что в соседнем файлике из того же архива значится, что "Основанием для проведения работы является необходимость замены существующего вагона-путеизмерителя, который эксплуатируется с 1959 года, и имеет большой износ"?!
Времена меняются: на офсайте повесили конкурсную документацию на выполнение работ по модернизации вагона 81 серии в вагон-путеизмеритель (пруф).NeoNavigator полтора года назад писал(а):Путеизмеритель ходит с Ем. На базе номерного в нашем метро путеизмерителей нет.
Скачав конкурсную документацию, я (ничего не понимающий в ПС) обратил внимание на следующее:
1 Вагон - путеизмеритель должен быть изготовлен на базе вагона метрополитена типа 81-714 со шпинтонными тележками.
2. Вагон-путеизмеритель должен работать промежуточным вагоном в составе из 5 – 6 (включая сам вагон путеизмеритель) вагонов метрополитена типа Е, Ем, включая сам вагон – путеизмеритель.
3. В салоне вагона необходимо демонтировать: диваны, поручни, пол, дверную пневмомагистраль, при необходимости, демонтируется облицовка стен, пневматическое и электрическое оборудование, находящиеся под диванами, которое переносится под кузов вагона или закрывается кожухами. Четыре боковые двери салона в шахматном порядке должны быть заблокированы, а проемы закрыты металлическим листом и заварены.
4. Кузов вагона должен быть разделён на шесть отсеков поперечными перегородками:
-1-ый технологический отсек помощника машиниста;
-отсек хранения одежды;
-мастерская;
-аппаратная;
-комната обслуживающего персонала;
-2-ой технологический отсек помощника машиниста.
5. Равномерно, по всему полу вагона, включая кабины машиниста, должен быть уложен балласт, общим весом 14 тонн.
6. Конструкция вагона, оборудование и механизмы должны обеспечивать надежную и безопасную работу в течение 10 лет
7. Внешний вид, форма и отделка вагона-путеизмерителя должны отвечать современным тенденциям технической эстетики на железнодорожном транспорте. [А НИП - это современная техническая эстетика?]
8. Вагон-путеизмеритель должен эксплуатироваться в составе не менее чем из пяти вагонов, включая сам вагон-путеизмеритель.
9. Наружная окраска вагона-путеизмерителя должна соответствовать типовой наружной окраске вагона-путеизмерителя.
10. Вагон-путеизмеритель должен работать на линии, по утверждённому графику не нарушая движения поездов. Рабочая и транспортная скорость следования от 0 до 80 км/час. Рабочая скорость следования по стрелочным переводам до 30 км/час. При прохождении по глухим пересечениям и перекрестным съездам, измерительные и отводные ролики или лыжи тележек механизмов шаблона и рихтовки выключаются (отводятся).
11. Транспортирование вагона-путеизмерителя по линиям метрополитена должно производиться в составе поезда метрополитена, имеющего не менее четырёх моторных вагонов.
Что меня удивило: почему всего 10 лет?! Особенно учитывая, что в соседнем файлике из того же архива значится, что "Основанием для проведения работы является необходимость замены существующего вагона-путеизмерителя, который эксплуатируется с 1959 года, и имеет большой износ"?!
Вообще я мирный, но Крестовский остров не прощу!
- Nomernoy
- Профессионал

- Сообщения: 5200
- Зарегистрирован: 10 окт 2005, 16:25
- Станция метро: Театральная
- Откуда: Санкт-Петербург
Re: хоз_поезда
Ничего удивительного - чтобы можно было заработать еще денег через 10 лет. Вы где живёте? 
Господину Стрекаловскому и компании невыгодно покупать/переоборудовать вагоны, чтобы они 40-50 лет служили.

Господину Стрекаловскому и компании невыгодно покупать/переоборудовать вагоны, чтобы они 40-50 лет служили.

- kot
- Профессионал

- Сообщения: 8284
- Зарегистрирован: 21 июл 2007, 17:39
- Станция метро: Озерки
- Откуда: издалека
Re: Путеизмеритель на базе "номерного"
Ну не надо придираться. Оборудование старого путеизмерителя наверняка уже несколько раз менялось. Да и сам он, поди, без единой старой детали, кроме кузова. Просто уже проржавел насквозь.EvgeniyAnd писал(а):Что меня удивило: почему всего 10 лет?! Особенно учитывая, что в соседнем файлике из того же архива значится, что "Основанием для проведения работы является необходимость замены существующего вагона-путеизмерителя, который эксплуатируется с 1959 года, и имеет большой износ"?!
Если не знаешь, что делать - не делай ничего.
- EvgeniyAnd
- Сообщения: 305
- Зарегистрирован: 24 фев 2008, 21:43
- Станция метро: Невский Проспект
- Откуда: СПб
Re: хоз_поезда
Kot, про оборудование на 10 лет - это соседняя позиция оригинального документа, а тут именно про вагон речь, что меня и удивило.
Вообще я мирный, но Крестовский остров не прощу!
- andzis
- Сообщения: 1435
- Зарегистрирован: 23 авг 2004, 00:36
- Станция метро: Купчино
- Откуда: Москва
Re: хоз_поезда
несколько снимков спецсостава с путеизмерителем, лабораторией и дефектоскопом, правда фото не очень удались
-
Den.S
- Сообщения: 4447
- Зарегистрирован: 30 апр 2009, 20:14
- Станция метро: Кировский Завод
- Контактная информация:
Re: хоз_поезда
А что за логотип "ЛМ СЦб" на хвостовой кабине? Неужели ЛМ - "Ленинградский метрополитен"? Да и вообще оригинальная у этого вагона раскраска, цвета вроде современные, в то время Емы так не красили, а вот логотип как будто из тех времен...