Отдельной темы про путеизмерители поиск не показывает, а это - самая живая из аналогичных. Так, вот, к чему это я...
NeoNavigator полтора года назад писал(а):Путеизмеритель ходит с Ем. На базе номерного в нашем метро путеизмерителей нет.
Времена меняются: на офсайте повесили конкурсную документацию на выполнение работ по модернизации вагона 81 серии в вагон-путеизмеритель (
пруф).
Скачав конкурсную документацию, я (ничего не понимающий в ПС) обратил внимание на следующее:
1 Вагон - путеизмеритель должен быть изготовлен на базе вагона метрополитена типа 81-714 со шпинтонными тележками.
2. Вагон-путеизмеритель должен работать промежуточным вагоном в
составе из 5 – 6 (включая сам вагон путеизмеритель)
вагонов метрополитена типа Е, Ем, включая сам вагон – путеизмеритель.
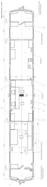
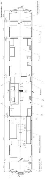
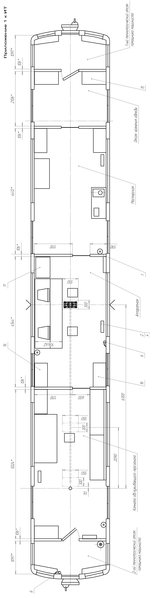
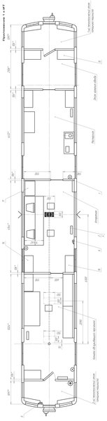
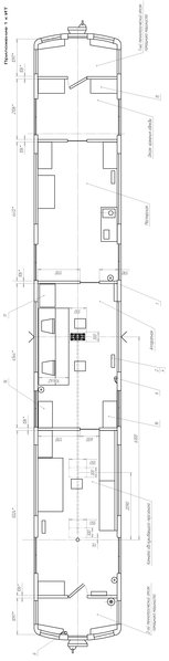
3. В салоне вагона необходимо демонтировать: диваны, поручни, пол, дверную пневмомагистраль, при необходимости, демонтируется облицовка стен, пневматическое и электрическое оборудование, находящиеся под диванами, которое переносится под кузов вагона или закрывается кожухами. Четыре боковые двери салона в шахматном порядке должны быть заблокированы, а проемы закрыты металлическим листом и заварены.
4. Кузов вагона должен быть разделён на
шесть отсеков поперечными перегородками:
-1-ый технологический отсек помощника машиниста;
-отсек хранения одежды;
-мастерская;
-аппаратная;
-комната обслуживающего персонала;
-2-ой технологический отсек помощника машиниста.

- Приложение 1 к ИТ и ТТ
5. Равномерно, по всему полу вагона, включая кабины машиниста, должен быть уложен
балласт, общим весом 14 тонн. 6. Конструкция вагона, оборудование и механизмы должны обеспечивать надежную и безопасную
работу в течение 10 лет 7. Внешний вид, форма и отделка вагона-путеизмерителя должны отвечать
современным тенденциям технической эстетики на железнодорожном транспорте. [
А НИП - это современная техническая эстетика?]
8. Вагон-путеизмеритель должен э
ксплуатироваться в составе не менее чем из пяти вагонов, включая сам вагон-путеизмеритель.
9. Наружная окраска вагона-путеизмерителя должна соответствовать типовой наружной окраске вагона-путеизмерителя.
10. Вагон-путеизмеритель должен работать на линии, по утверждённому графику не нарушая движения поездов. Рабочая и транспортная скорость следования от 0 до 80 км/час. Рабочая скорость следования по стрелочным переводам до 30 км/час. При прохождении по глухим пересечениям и перекрестным съездам, измерительные и отводные ролики или лыжи тележек механизмов шаблона и рихтовки выключаются (отводятся).
11. Транспортирование вагона-путеизмерителя по линиям метрополитена должно производиться в составе поезда метрополитена, имеющего не менее четырёх моторных вагонов.
Что меня удивило: почему всего 10 лет?! Особенно учитывая, что в соседнем файлике из того же архива значится, что "Основанием для проведения работы является необходимость замены существующего вагона-путеизмерителя, который эксплуатируется с 1959 года, и имеет большой износ"?!