Электродепо Южное
Модератор: Nomernoy
-
Gleb
- Сообщения: 898
- Зарегистрирован: 22 май 2006, 23:11
- Станция метро: Новочеркасская
Re: Электродепо Южное
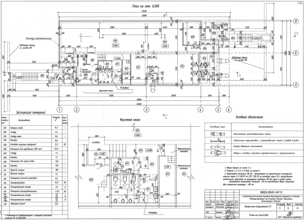
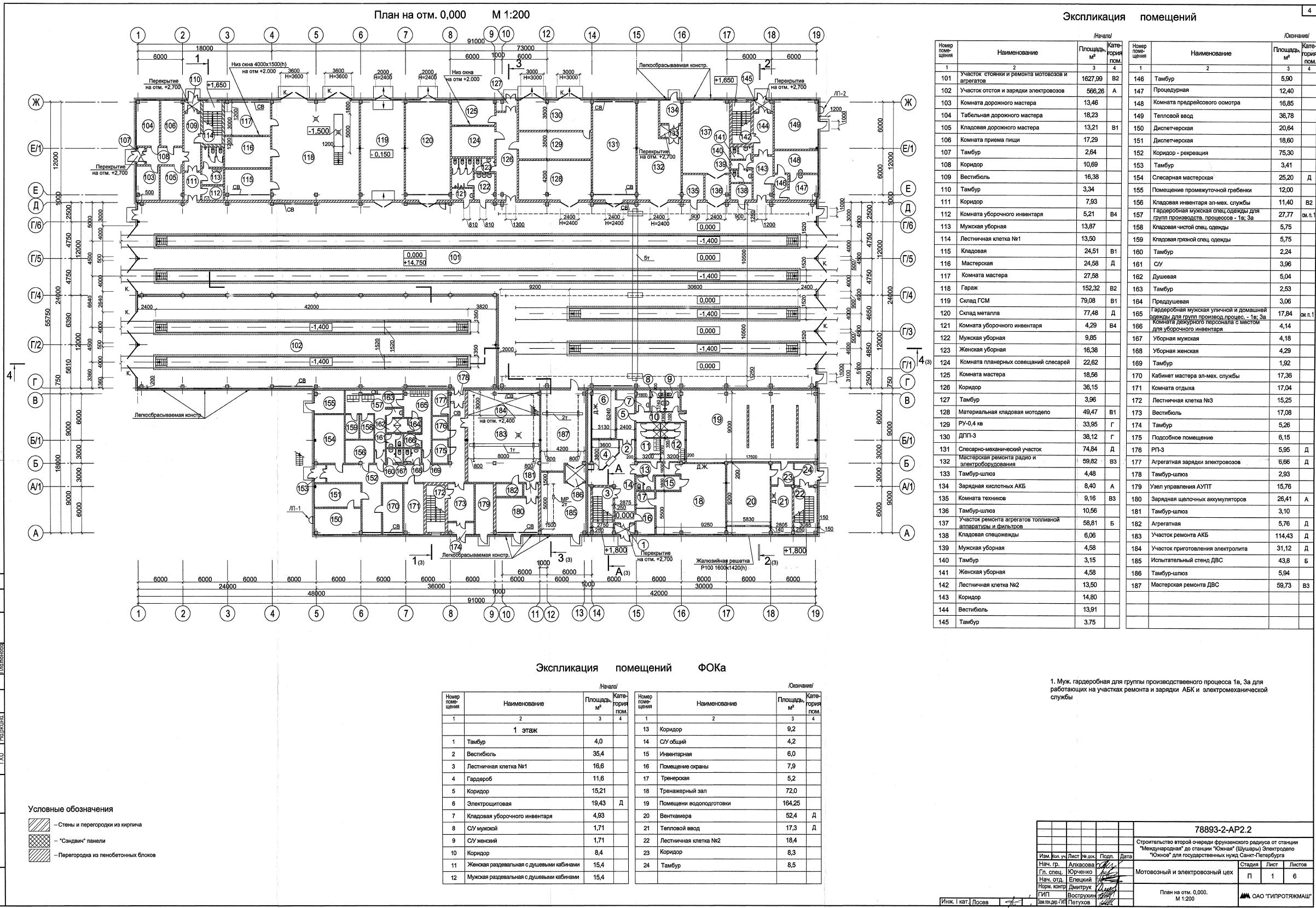
Схемы из проектной документации.
Мотовозный и электровозный цех:
Цех запасных агрегатов и узлов:
Цех обточки колесных пар:
Цех окраски и сушки вагонов:
Мотовозный и электровозный цех:
Цех запасных агрегатов и узлов:
Цех обточки колесных пар:
Цех окраски и сушки вагонов:
-
Gleb
- Сообщения: 898
- Зарегистрирован: 22 май 2006, 23:11
- Станция метро: Новочеркасская
Re: Электродепо Южное
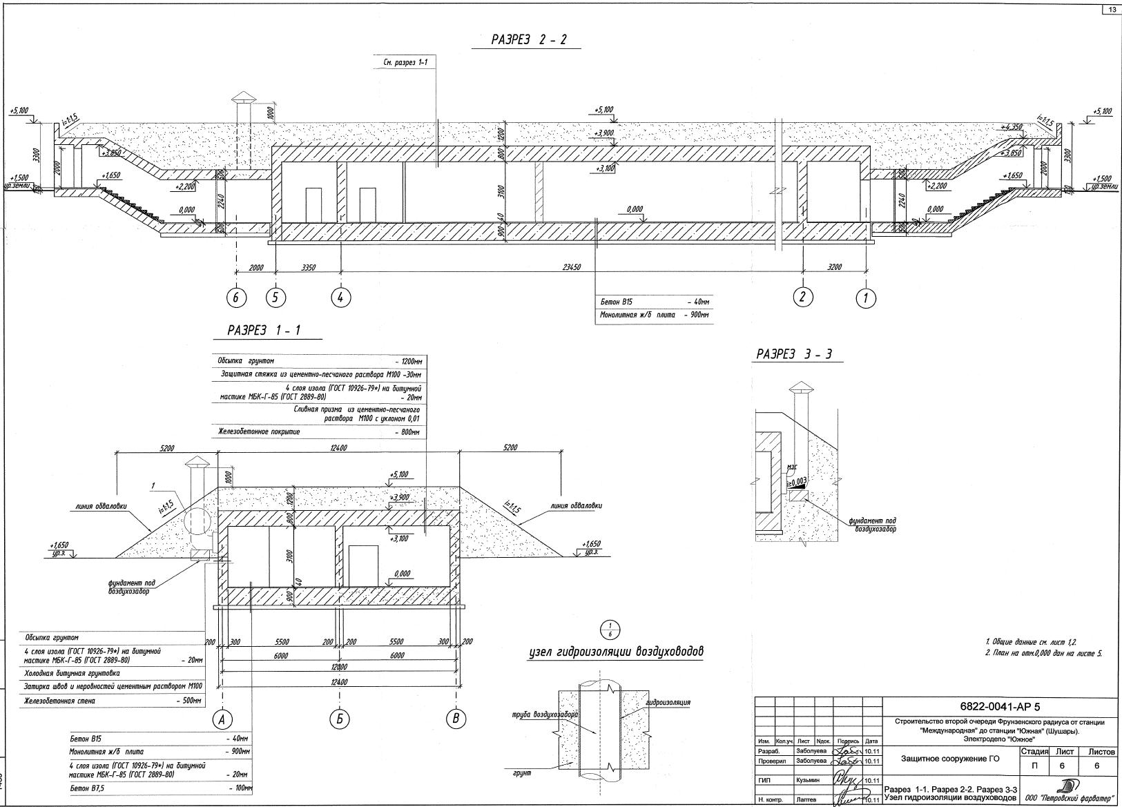
Схемы из проектной документации (продолжение).
Защитное сооружение ГО:
Защитное сооружение ГО:
-
Gleb
- Сообщения: 898
- Зарегистрирован: 22 май 2006, 23:11
- Станция метро: Новочеркасская
Re: Электродепо Южное
Схемы из проектной документации (продолжение).
Тяговая сеть:
Тяговая сеть:
-
Gleb
- Сообщения: 898
- Зарегистрирован: 22 май 2006, 23:11
- Станция метро: Новочеркасская
Re: Электродепо Южное
Схемы из проектной документации (продолжение 2).
Схема расположения оборудования МПЦ-МПК:
Схема МПЦ-МПК двухниточный план:
Схема расположения оборудования МПЦ-МПК:
Схема МПЦ-МПК двухниточный план:
- Павел
- Сообщения: 528
- Зарегистрирован: 22 июн 2004, 11:30
- Откуда: спб
Re: Электродепо Южное
активно сооружается галерея (фото пятничные, снятые на телефон)
А вы знаете , что терапевт - это 1024 гигапевта или 1048576 мегапевтов
- Nomernoy
- Профессионал

- Сообщения: 5186
- Зарегистрирован: 10 окт 2005, 16:25
- Станция метро: Театральная
- Откуда: Санкт-Петербург
Re: Электродепо Южное
На площадке электродепо пока что нечего смотреть. Активно вывозят торф, ожидают рабочей документации от Ленгипротранса.

- karhu
- Сообщения: 3938
- Зарегистрирован: 31 дек 2008, 19:14
- Станция метро: Василеостровская
- Откуда: Санкт-Петербург
- в40
- Профессионал

- Сообщения: 14816
- Зарегистрирован: 05 фев 2009, 19:46
- Станция метро: Проспект Большевиков
- Откуда: Дачное
Re: Электродепо Южное
Организации разные, но проектированием депо всегда занимался ЛГТ (на субподряде у ЛМГТ).
Nomernoy всё правильно написал.
Nomernoy всё правильно написал.
О=О=О=О=О=О=О=О=О=О=О=О=О=О=О=О=О=О=О
- mx
- Профессионал

- Сообщения: 4138
- Зарегистрирован: 14 сен 2005, 21:32
- Станция метро: -------
- Откуда: 59`50N 30`25E
Re: Электродепо Южное
Nomernoy писал(а):На площадке электродепо пока что нечего смотреть.
Почему же
Вовсю идёт строительство свайного поля, вон уже сколько забурили свай по осям колонн. Подрядчик добросовестный, это радует.Всё потому, что кто-то слишком много ест!
- в40
- Профессионал

- Сообщения: 14816
- Зарегистрирован: 05 фев 2009, 19:46
- Станция метро: Проспект Большевиков
- Откуда: Дачное
Re: Электродепо Южное
mx писал(а):Подрядчик добросовестный, это радует
Лишь бы Генподрядчик оказался добросовестным...
Привет, Зенит-арена! (Кто работал на стадионе - тот понимает, о чём речь).
О=О=О=О=О=О=О=О=О=О=О=О=О=О=О=О=О=О=О
- kot
- Профессионал

- Сообщения: 8283
- Зарегистрирован: 21 июл 2007, 17:39
- Станция метро: Озерки
- Откуда: издалека
Re: Электродепо Южное
На этой площадке всё сильно запутано:
И проектировщиков несколько, и строителей тоже.
И самое интересное, что ПМ практически лишён возможности влиять на ход проектирования, строительства, выбор технологий, оборудования и т.д.
Даже не знаю, чего в этом больше, позитива или негатива.
И проектировщиков несколько, и строителей тоже.
И самое интересное, что ПМ практически лишён возможности влиять на ход проектирования, строительства, выбор технологий, оборудования и т.д.
Даже не знаю, чего в этом больше, позитива или негатива.
Если не знаешь, что делать - не делай ничего.
- Иван Волков
- Сообщения: 644
- Зарегистрирован: 11 фев 2006, 16:41
- Станция метро: Дунайская
Re: Электродепо Южное
Негатива. В школьном строителстве уже "наелись". В проектирование и строительство сооружений должны активно вмешиваться те, кто потом будет ими пользоваться. Разумеется, в разумных пределах.
-
AgRiG
- Сообщения: 1252
- Зарегистрирован: 07 июн 2009, 15:32
- Станция метро: Автово
Re: Электродепо Южное
Может быть, на это всё надо было влиять на этапе составления ТЗ к конкурсу? Понятно, что хочется держать весь ход работ под контролем...kot писал(а):И самое интересное, что ПМ практически лишён возможности влиять на ход проектирования, строительства, выбор технологий, оборудования и т.д.
Даже не знаю, чего в этом больше, позитива или негатива.
- mx
- Профессионал

- Сообщения: 4138
- Зарегистрирован: 14 сен 2005, 21:32
- Станция метро: -------
- Откуда: 59`50N 30`25E
Re: Электродепо Южное
Без контроля как-то лучше получается
Строят быстро, вовсю ставят колонны перекрытий в отстойно-ремонтном корпусе.
Строят быстро, вовсю ставят колонны перекрытий в отстойно-ремонтном корпусе.Всё потому, что кто-то слишком много ест!
- Metroschemes
- Сообщения: 6499
- Зарегистрирован: 22 окт 2005, 04:19
- last_fm: Metroschemes
- Станция метро: Парнас
- Откуда: Питер
- Контактная информация:
Re: Электродепо Южное
Пара фоток некоторой степени свежести 

Всего за месяц ЗЕНИТ взял три трофея и одну станцию метро!
Заходите на мой сайт: Схема метро - История метрополитенов в схемах!
Заходите на мой сайт: Схема метро - История метрополитенов в схемах!