Лахтинский радиус. Общая тема
Модератор: Nomernoy
- Ignat
- Сообщения: 431
- Зарегистрирован: 28 окт 2010, 02:29
- last_fm: Ta6ypeTKo
- Станция метро: Большеохтинская
- Контактная информация:
Re: Лахтинский радиус. Общая тема
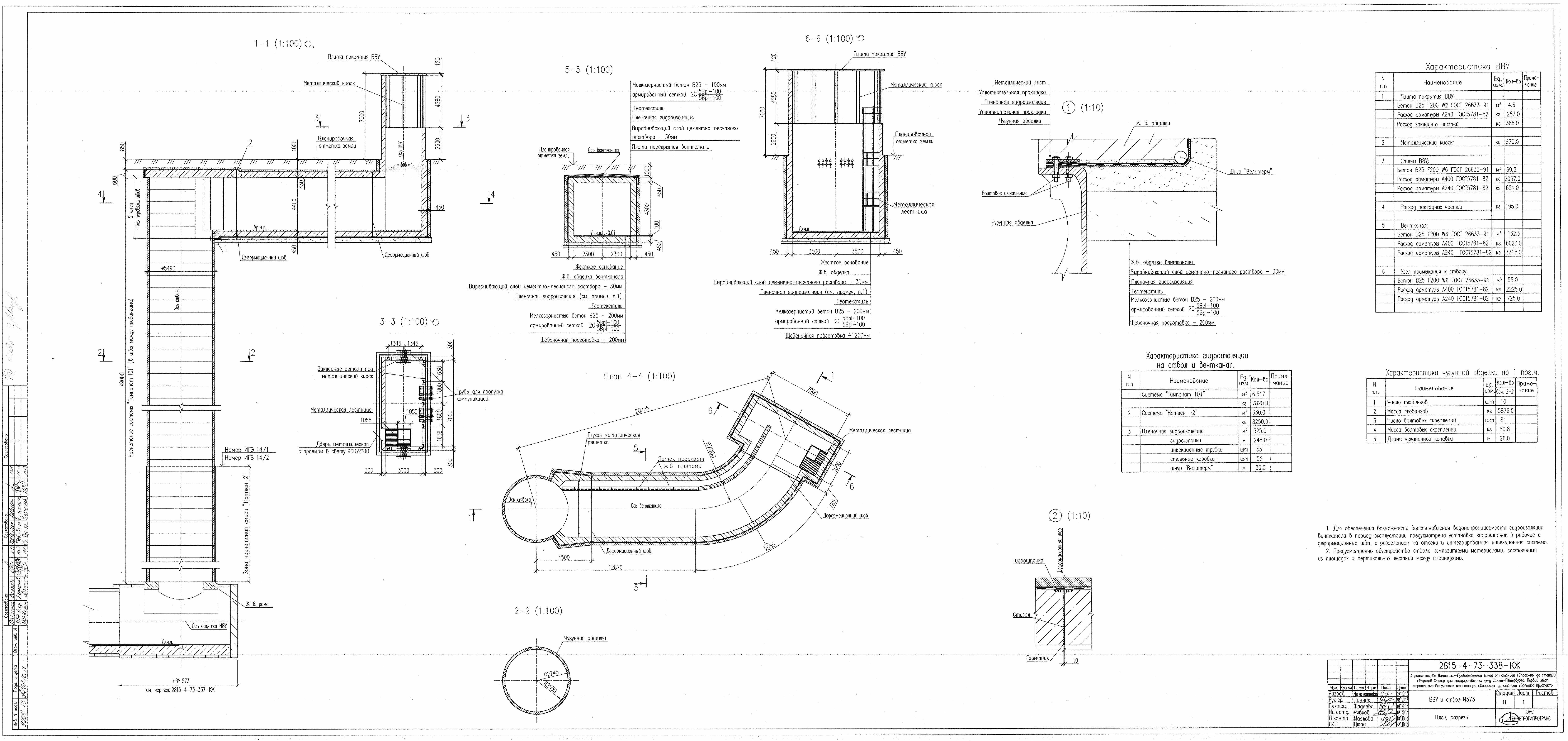
Да, такой венткиоск и планировался по проекту:
Он устроен со смещением, так что не помешает производить работы в стволе:
Он устроен со смещением, так что не помешает производить работы в стволе:
- MaksegZ
- Сообщения: 4551
- Зарегистрирован: 15 янв 2006, 06:54
- Станция метро: Московская
- Откуда: Питер
- Контактная информация:
Re: Лахтинский радиус. Общая тема
Svjazist писал(а):MetroGnom писал(а):Смесь деревенского сортира и трансформаторной будки. Достойная архитектура.
З.Ы. Надеюсь, что это, всё-таки, временное сооружение.
Сооружение в стиле максимального минимализма, даже Никита Сергеевич, наверное, до такого не дошел бы в вопросе экономии на метро. Похоже на голубятню. Вообще, материал обшивки как-то выглядит недолговечным. Тем более там ворота, значит, могут парковаться машины, так что должно быть доп. ограждения из-за хлипкости (по крайней мере, на фото) использованных материалов.
Так нет там пока никакой обшивки, киоск из монолитного железобетона явно. Дверной проем, впрочем, явно не по проекту сделан.
.
Дунайская течёт... как вы судно назовёте, так оно и поплывёт 
"Надо строить быстро, качественно и недорого" © правительство СПб
Создал чат в ТГ, присоединяемся - https://t.me/subwaytalks

"Надо строить быстро, качественно и недорого" © правительство СПб
Создал чат в ТГ, присоединяемся - https://t.me/subwaytalks
- darkglare
- Сообщения: 2138
- Зарегистрирован: 26 ноя 2006, 07:31
- Станция метро: Автово
- Откуда: Питер
Re: Лахтинский радиус. Общая тема
когда (хочется верить, что не "если") отделают, будет один из самых необычных венткиосков 

-
ленинградец
- Сообщения: 928
- Зарегистрирован: 26 мар 2012, 20:00
- Станция метро: Чернышевская
Re: Лахтинский радиус. Общая тема
А вот прикольно если венткиоск сделать в виде домика хоббита или бабы яги?
- Ignat
- Сообщения: 431
- Зарегистрирован: 28 окт 2010, 02:29
- last_fm: Ta6ypeTKo
- Станция метро: Большеохтинская
- Контактная информация:
Re: Лахтинский радиус. Общая тема
Пара вчерашних фото площадки 573-й шахты:
-
Чау-чау
- Сообщения: 2589
- Зарегистрирован: 26 ноя 2011, 19:20
- Станция метро: Шкиперская
Re: Лахтинский радиус. Общая тема
Интересно, как скоро можно будет приступать к сооружению венткиоска на 571.
- Metroschemes
- Сообщения: 6499
- Зарегистрирован: 22 окт 2005, 04:19
- last_fm: Metroschemes
- Станция метро: Парнас
- Откуда: Питер
- Контактная информация:
Re: Лахтинский радиус. Общая тема
Свежее фото.
Всего за месяц ЗЕНИТ взял три трофея и одну станцию метро!
Заходите на мой сайт: Схема метро - История метрополитенов в схемах!
Заходите на мой сайт: Схема метро - История метрополитенов в схемах!
-
Icefer
- Сообщения: 1375
- Зарегистрирован: 10 июл 2019, 22:38
- Станция метро: Морской Фасад
Re: Лахтинский радиус. Общая тема
Я верно понимаю что 572 останется с недемонтированным горным комплексом, как и шахта у Дыбенко - до строительства Шкиперской?
- в40
- Профессионал

- Сообщения: 14816
- Зарегистрирован: 05 фев 2009, 19:46
- Станция метро: Проспект Большевиков
- Откуда: Дачное
Re: Лахтинский радиус. Общая тема
Нет, не верно.
Недомонтированный горный комплекс был на 571 шахте (вентиляционной). Эта шахта будет сдана в эксплуатацию вместе со станцией, т.к. предназначена для вентиляции тупиков.
А на 572-й находится нормальный работоспособный горный комплекс. Но после пуска, скорее всего, он тоже будет ликвидирован, т.к. в ближайшей перспективе продление линии в сторону "Гавани" ("Шкиперской") пока не рассматривается.
Если только не произойдёт чудо.
Недомонтированный горный комплекс был на 571 шахте (вентиляционной). Эта шахта будет сдана в эксплуатацию вместе со станцией, т.к. предназначена для вентиляции тупиков.
А на 572-й находится нормальный работоспособный горный комплекс. Но после пуска, скорее всего, он тоже будет ликвидирован, т.к. в ближайшей перспективе продление линии в сторону "Гавани" ("Шкиперской") пока не рассматривается.
Если только не произойдёт чудо.
О=О=О=О=О=О=О=О=О=О=О=О=О=О=О=О=О=О=О
- Metroschemes
- Сообщения: 6499
- Зарегистрирован: 22 окт 2005, 04:19
- last_fm: Metroschemes
- Станция метро: Парнас
- Откуда: Питер
- Контактная информация:
Re: Лахтинский радиус. Общая тема
Текущее состояние.
Всего за месяц ЗЕНИТ взял три трофея и одну станцию метро!
Заходите на мой сайт: Схема метро - История метрополитенов в схемах!
Заходите на мой сайт: Схема метро - История метрополитенов в схемах!
- Metroschemes
- Сообщения: 6499
- Зарегистрирован: 22 окт 2005, 04:19
- last_fm: Metroschemes
- Станция метро: Парнас
- Откуда: Питер
- Контактная информация:
Re: Лахтинский радиус. Общая тема
Всё! Стройплощадки больше нет, объект готов! Летом можно будет покрасивее фотку сделать.
Всего за месяц ЗЕНИТ взял три трофея и одну станцию метро!
Заходите на мой сайт: Схема метро - История метрополитенов в схемах!
Заходите на мой сайт: Схема метро - История метрополитенов в схемах!
- Фуфсяк
- Сообщения: 1049
- Зарегистрирован: 06 апр 2005, 17:05
- last_fm: MetroFan
- Станция метро: Ленинский Проспект
- Откуда: Санкт-Петербург
Re: Лахтинский радиус. Общая тема
Есть ли, хотя бы теоретическая, возможность поменять местами линии 3 и 4 на станции Зенит по направлению на север? Зелёную после Зенита пустить в Лахту, а участок в сторону Шуваловского проспекта отдать оранжевой.
Мне кажется что восьмивагонная оранжевая лучше справится с гораздо более населённым районом восточнее Юнтоловки, нежели шестивагонная зелёная. Плюс у восточной части района выше амбиции, там метро планируется аж до Осиновой Рощи.
Мне кажется что восьмивагонная оранжевая лучше справится с гораздо более населённым районом восточнее Юнтоловки, нежели шестивагонная зелёная. Плюс у восточной части района выше амбиции, там метро планируется аж до Осиновой Рощи.
От вселенской любви только морды в крови.
-
Михаил К
- Сообщения: 2424
- Зарегистрирован: 04 янв 2009, 22:09
- Откуда: Санкт-Петербург
Re: Лахтинский радиус. Общая тема
Нет такой возможности поменять их там
-
Адмирал
- Сообщения: 2267
- Зарегистрирован: 07 окт 2014, 21:16
- Станция метро: Юго-Западная
- Откуда: Санкт-Петербург
Re: Лахтинский радиус. Общая тема
Зенит и Беговая уже построены 6-вагонными (и дальнейшие станции планируются такими же), и без их перестройки и остановки движения точно не получится переключить.
- в40
- Профессионал

- Сообщения: 14816
- Зарегистрирован: 05 фев 2009, 19:46
- Станция метро: Проспект Большевиков
- Откуда: Дачное
Re: Лахтинский радиус. Общая тема
Для такой перестройки станции с перегонными тоннелями ещё и существующего земельного участка недостаточно.
О=О=О=О=О=О=О=О=О=О=О=О=О=О=О=О=О=О=О
, даже Никита Сергеевич, наверное, до такого не дошел бы в вопросе экономии на метро. Похоже на голубятню. Вообще, материал обшивки как-то выглядит недолговечным. Тем более там ворота, значит, могут парковаться машины, так что должно быть доп. ограждения из-за хлипкости (по крайней мере, на фото) использованных материалов.