Ну скорее всего пришло понимание, что второй наклон там и не нужен и достаточно одного. Тем более что уже есть наклон на Площади Восстания, а три наклона на один вокзал - слишком жирно. Да даже два жирно, но учитывая что это центр, то для удобства в час пик допустимо.mx писал(а): ↑24 мар 2025, 22:17 Указан только один наклон - тот, что будет вести на "Лиговский проспект-1".
Совершенно не верю, что всё это построят за три года до апреля 2028 и тем более не верю, что "когда-нибудь потом" опять раскопают привокзальную площадь для строительства второго наклона от "ЛП-2".
Лиговский Проспект 2
Модератор: Nomernoy
- GelezinisVilkas
- Сообщения: 3680
- Зарегистрирован: 15 май 2015, 12:19
- Станция метро: Дунайская
Re: Лиговский Проспект 2
- Rumm
- Диггер Параноик
- Сообщения: 2838
- Зарегистрирован: 15 апр 2004, 14:42
- Станция метро: Сенная Площадь
- Откуда: Из болота Питерского
- Контактная информация:
Re: Лиговский Проспект 2
Приложу Распоряжение Комитета по Градостроительству и Архитектуре №1-17-2 от 21 марта 2025 г. с условиями и положением о архитектурном конкурсе.
- Вложения
-
- Арх конкурс Лиговский 2_01-17-2.pdf
- (41.61 МБ) 202 скачивания
Избегай троп, по которым ходят трамваи и троллейбусы — они приводят не к человечьему жилью, а в их логово
- Rumm
- Диггер Параноик
- Сообщения: 2838
- Зарегистрирован: 15 апр 2004, 14:42
- Станция метро: Сенная Площадь
- Откуда: Из болота Питерского
- Контактная информация:
Re: Лиговский Проспект 2
Картинки в догонку
Избегай троп, по которым ходят трамваи и троллейбусы — они приводят не к человечьему жилью, а в их логово
- mx
- Профессионал

- Сообщения: 4138
- Зарегистрирован: 14 сен 2005, 21:32
- Станция метро: -------
- Откуда: 59`50N 30`25E
Re: Лиговский Проспект 2
Скорее всего пришло понимание, что станция ККЛ появится вообще непонятно когда, но уж явно позже центрального участка (который пока и строить не начинали). Поскольку на имеющемся наклоне на вокзале творится перманентный караул - надо сделать хоть что-то. И пока планируют этот совсем неудобный второй выход с первой Лиговки. С очень длинным коридором и лестницами, но ничего другого сейчас не придумать. Да и такое за три года никак не построить, но остальные варианты ещё дольше.GelezinisVilkas писал(а): ↑25 мар 2025, 13:57Ну скорее всего пришло понимание, что второй наклон там и не нужен и достаточно одного.
Кстати предпроект делал Метрогипротранс. Поскольку этот выход не входит в рамочный контракт МСС, а БТС недавно купил МГТ - для БТС это вполне может стать ближайшим метрообъектом.
GelezinisVilkas писал(а): ↑25 мар 2025, 13:57Тем более что уже есть наклон на Площади Восстания, а три наклона на один вокзал - слишком жирно.
Надо ещё приплюсовать наклон "Знаменской" и тогда это станет похоже на нормальный центральный транспортный узел города-многомиллионника.
Всё потому, что кто-то слишком много ест!
- GelezinisVilkas
- Сообщения: 3680
- Зарегистрирован: 15 май 2015, 12:19
- Станция метро: Дунайская
Re: Лиговский Проспект 2
Ничего похожего. Если бы хотя бы один из вестибюлей был встроен в вокзал, то с натяжкой можно было бы это назвать - нормальным.
Или хотя бы был проход с платформ ВСМ по низу в вестибюль Лиговского.
А так от поезда до турникета придётся идти далеко и с кучей лестниц и эскалаторов, если догадаются их сделать.
Учитывая, что поток в метро постоянно снижается, смысла в 3-4 наклонах особо нет.
- mx
- Профессионал

- Сообщения: 4138
- Зарегистрирован: 14 сен 2005, 21:32
- Станция метро: -------
- Откуда: 59`50N 30`25E
Re: Лиговский Проспект 2
И что же - если вход в метро не удаётся сделать удобным, то не надо делать его вообще?GelezinisVilkas писал(а): ↑26 мар 2025, 10:18 А так от поезда до турникета придётся идти далеко и с кучей лестниц и эскалаторов, если догадаются их сделать.
Почему это снижается?GelezinisVilkas писал(а): ↑26 мар 2025, 10:18 Учитывая, что поток в метро постоянно снижается, смысла в 3-4 наклонах особо нет.
2021 - 603 млн.
2022 - 649 млн.
2023 - 668 млн.
За 2024 пока статистики нет, но рост пассажиропотока налицо.
Всё потому, что кто-то слишком много ест!
- Павел
- Сообщения: 528
- Зарегистрирован: 22 июн 2004, 11:30
- Откуда: спб
Re: Лиговский Проспект 2
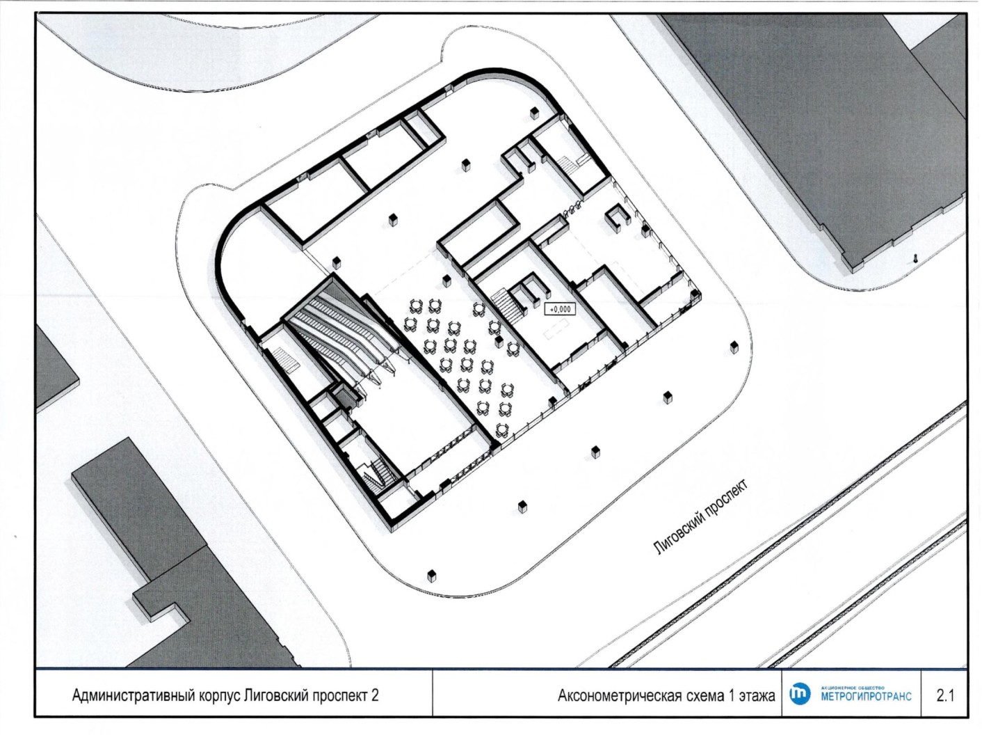
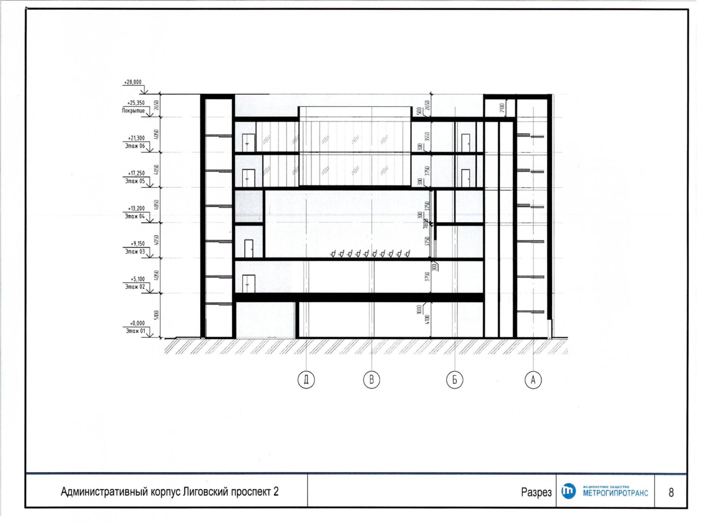
а на какой глубине будет сооружаться голубой сегмент на карте...это получается промежуточный вестибюль...
А вы знаете , что терапевт - это 1024 гигапевта или 1048576 мегапевтов
- GelezinisVilkas
- Сообщения: 3680
- Зарегистрирован: 15 май 2015, 12:19
- Станция метро: Дунайская
Re: Лиговский Проспект 2
Чьё лицо?
В 2019 году пассажиропоток был 762 млн./год,
в 1991 - 1100 млн./год.
Он не растёт, он рухнул и еле-еле восстанавливается.
Даже до доковидных значений, он при нашей жизни не доберётся.
- mx
- Профессионал

- Сообщения: 4138
- Зарегистрирован: 14 сен 2005, 21:32
- Станция метро: -------
- Откуда: 59`50N 30`25E
Re: Лиговский Проспект 2
Новые термины пошли в ход - то модно было использовать "отрицательный рост", теперь появилось "восстановительное обрушение"
В статистику по 1991 не особо верю - не было возможности её точно посчитать, похоже на обычную советскую приписку "пассажирокилометров".
В статистику по 1991 не особо верю - не было возможности её точно посчитать, похоже на обычную советскую приписку "пассажирокилометров".
Как и любой другой подземный вестибюль. Прямо под проезжей частью.
Всё потому, что кто-то слишком много ест!
-
Icefer
- Сообщения: 1379
- Зарегистрирован: 10 июл 2019, 22:38
- Станция метро: Морской Фасад
Re: Лиговский Проспект 2
Ну про 1100М неизвестно, но больше 900М он точно был. Посмотрите за 2000е и 2010е. как сейчас идёт - доковидный 2019 он превысит в середине 2030х.
- GelezinisVilkas
- Сообщения: 3680
- Зарегистрирован: 15 май 2015, 12:19
- Станция метро: Дунайская
Re: Лиговский Проспект 2
Рост потока был только до кризиса 2008 года, потом падение и стагнация на уровне +- тех 760 млн.
Учитывая ориентацию городского правительства на автомобилизацию, чуда в 30-х ждать не стоит.
-
Icefer
- Сообщения: 1379
- Зарегистрирован: 10 июл 2019, 22:38
- Станция метро: Морской Фасад
Re: Лиговский Проспект 2
Население агломерации понемногу растёт, + имхо надо не только на пассажиропоток но и на пассажирооборот смотреть, т.е. на пассажирокилометры. В частности, бум застройки Мурино точно существенно подкорректировал этот показатель т.к. те кто садятся в Девяткино, выходят явно не на Гражданском проспекте. С открытием продления 3 линии, а особенно с продлением её ещё на 1 сегмент из 2 станций до Академгородка - там тоже будет существенный сдвиг потоков т.к. на Суздальский проспект очень неудобно, и по довольно кривой траектории, добираться на авто.
Общий посыл - потоки перестраиваются, смотреть на пассажиропоток в вакууме так себе затея.
Общий посыл - потоки перестраиваются, смотреть на пассажиропоток в вакууме так себе затея.
- GelezinisVilkas
- Сообщения: 3680
- Зарегистрирован: 15 май 2015, 12:19
- Станция метро: Дунайская
Re: Лиговский Проспект 2
Пассажирокилометры -
они тут роли никакой не играют, так как составокилометры они неизменны при неизменной парности на линиях.
В контексте обсуждения на вокзале кратно поток не возрастёт, а даже кратно упадёт, если весь пригород уедет на Волковскую.
Так что строить два выхода с Лиговских смыла никакого нет, достаточно будет одного - совмещённого.
Касательно Девяткино и прочих указанных пердей, и роста агломерации.
Рост то был в 10-х годах, а поток в метрополитене почему-то падал с 787 (2011) до 762 (2019) (2020 не берём там вообще всё плохо).
Ну и открытие новых участков приведёт только к тому, что нагрузка на Коменду и СД станет меньше. И всё.
В контексте обсуждения на вокзале кратно поток не возрастёт, а даже кратно упадёт, если весь пригород уедет на Волковскую.
Так что строить два выхода с Лиговских смыла никакого нет, достаточно будет одного - совмещённого.
Касательно Девяткино и прочих указанных пердей, и роста агломерации.
Рост то был в 10-х годах, а поток в метрополитене почему-то падал с 787 (2011) до 762 (2019) (2020 не берём там вообще всё плохо).
Ну и открытие новых участков приведёт только к тому, что нагрузка на Коменду и СД станет меньше. И всё.
-
Icefer
- Сообщения: 1379
- Зарегистрирован: 10 июл 2019, 22:38
- Станция метро: Морской Фасад
Re: Лиговский Проспект 2
Нагрузка на Коменду станет меньше т.е. придёт к её расчётным показателям, т.к. с Коменды станет ездить только непосредственно радиус 800м от неё или как там считается шаговая доступность, а не "всё от Коменды на север до КАДа"
Пассажирокилометры могут начать играть роль при вводе зонной оплаты. Хотя я думаю датамайнинг по конкретным участкам уже идёт, иначе как рассчитывают зонные обороты по Старой Деревне, Международной и где-то на Выборгском радиусе (Пл.Ленина и Академ?), так что составокилометры тоже немного корректируют, но возможности корректировки ограничены расположением оборотных тупиков
Пассажирокилометры могут начать играть роль при вводе зонной оплаты. Хотя я думаю датамайнинг по конкретным участкам уже идёт, иначе как рассчитывают зонные обороты по Старой Деревне, Международной и где-то на Выборгском радиусе (Пл.Ленина и Академ?), так что составокилометры тоже немного корректируют, но возможности корректировки ограничены расположением оборотных тупиков
-
lembas_kun
- Сообщения: 118
- Зарегистрирован: 01 янв 2007, 04:37
- Откуда: оз.Долгое
Re: Лиговский Проспект 2
Лучше бы рассмотрели выход с другой стороны жд через траволатор, расстояние там вроде бы такое же как на спортивной.
С обратной стороны жд не ожидается метростанций даже в далеких планах.
От Ал.Невского не пройти из-за больницы.
А по запланированному тоннелю к товарному переулку вряд ли будет ходить общественный транспорт.
С обратной стороны жд не ожидается метростанций даже в далеких планах.
От Ал.Невского не пройти из-за больницы.
А по запланированному тоннелю к товарному переулку вряд ли будет ходить общественный транспорт.