Путиловская
- ButanAnim
- Сообщения: 335
- Зарегистрирован: 21 сен 2024, 15:49
- Станция метро: Театральная
- telegram: https://t.me/Baltsiets
Re: Путиловская
Примечательно в переходе я нашёл такие приколы с полузакручеными болтами, дыр между плиткой и зонтами, а так же старый задел под возможное размещение специальных полосок для слабовидящих людей.
Проектом правая часть на фото должна была предусматривать продолжение этих линий в сторону эскалаторов, но, в связи с поздним внедрением лифтовой шахты и возможной установкой лифта, такие плиты решили закончить у входа в помещение с лифтом. Хотя какой смысл тогда выходит в этой штуки, если со станции этим путём ты в любом случае попадёшь на станцию, только уже в один из двух БСТ.
Проектом правая часть на фото должна была предусматривать продолжение этих линий в сторону эскалаторов, но, в связи с поздним внедрением лифтовой шахты и возможной установкой лифта, такие плиты решили закончить у входа в помещение с лифтом. Хотя какой смысл тогда выходит в этой штуки, если со станции этим путём ты в любом случае попадёшь на станцию, только уже в один из двух БСТ.
Жду когда эти черти откроют Театральную.
-
KotovladeletsGT
- Сообщения: 7
- Зарегистрирован: 10 апр 2023, 23:59
- Станция метро: Электросила
Re: Путиловская
Незакрученные болты это так, ерунда. Вот когда я, будучи за два дня до пуска там по работе с удивлением обнаружил полное отсутствие на станции туалета - этот сюрприз был крайне неприятен. Не знаю, возможно и сейчас работники в метростроевский городок по нужде на эскалаторах ездят. Там в целой плеяде технических помещений ещё конь не валялся, доделывать будут долго
-
AlexandrIvanov
- Сообщения: 476
- Зарегистрирован: 18 янв 2018, 17:03
- Станция метро: Московские Ворота
Re: Путиловская
Поздравляю с открытием ККЛ, станции Путиловская!
Станция очень интересная и современная. Переход с Кировского завода по-московски современный (ощущаешь себя немного где-нибудь на БКЛ в Московском метрополитене), немного замысловатый, но весьма добротный. Я ошибался по поводу ширины коридора, места вполне хватает даже вопреки немаленькому, надо сказать, пассажиропотоку в первый такой час пик сегодня.
В общем, браво, большой респект!
Станция очень интересная и современная. Переход с Кировского завода по-московски современный (ощущаешь себя немного где-нибудь на БКЛ в Московском метрополитене), немного замысловатый, но весьма добротный. Я ошибался по поводу ширины коридора, места вполне хватает даже вопреки немаленькому, надо сказать, пассажиропотоку в первый такой час пик сегодня.
В общем, браво, большой респект!
- Vladimir91
- Сообщения: 2175
- Зарегистрирован: 18 май 2009, 14:44
- Станция метро: Гражданский Проспект
- Откуда: СПб
Re: Путиловская
Станция понравилась: просторная, симпатичная отделка, выглядит стильно. Светильники на эскалаторах хороши, как и на ЮЗ. Вот вестибюль, конечно, спорный. Нужно ли было делать такое монументальное здание с лестницами и колоннами?
Согласен, тоже ловил себя на мысли, что переход, да и вообще весь новый участок напоминает ММ.AlexandrIvanov писал(а): ↑29 дек 2025, 21:28 Переход с Кировского завода по-московски современный (ощущаешь себя немного где-нибудь на БКЛ в Московском метрополитене)
- ButanAnim
- Сообщения: 335
- Зарегистрирован: 21 сен 2024, 15:49
- Станция метро: Театральная
- telegram: https://t.me/Baltsiets
Re: Путиловская
Рендер станции метро Путиловская без станционных дверей.
Источник: https://t.me/podzemnik_spb/8672?comment=199506
Источник: https://t.me/podzemnik_spb/8672?comment=199506
Жду когда эти черти откроют Театральную.
- ButanAnim
- Сообщения: 335
- Зарегистрирован: 21 сен 2024, 15:49
- Станция метро: Театральная
- telegram: https://t.me/Baltsiets
Re: Путиловская
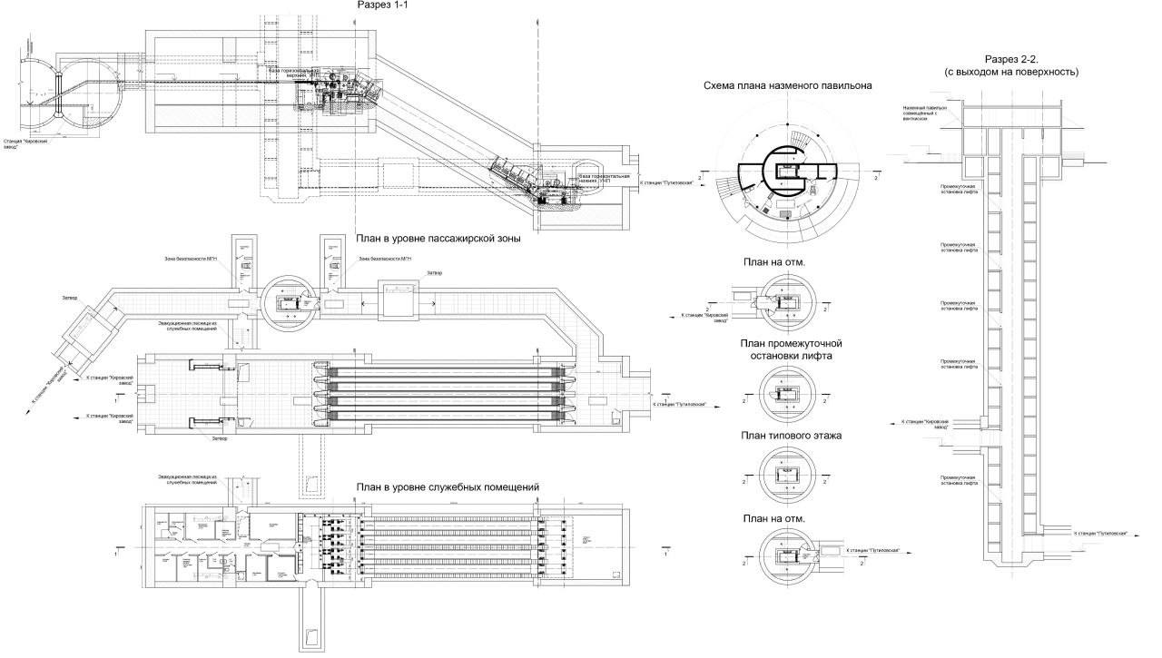
Нереализованный проект пересадочного узла «Путиловская» - «Кировский завод» и павильона выхода для маломобильных пассажиров в сквере перед ДК им. И.И. Газа.
Жду когда эти черти откроют Театральную.
-
AlexandrIvanov
- Сообщения: 476
- Зарегистрирован: 18 янв 2018, 17:03
- Станция метро: Московские Ворота
Re: Путиловская
Засёк время, которое нужно, чтобы проехать ККЛ от двери до двери, зашёл на Путиловской, спустился, проехал до Казаковской (ой, Юго-Западной, дежавю с Фрунзенским радиусом, как я там станции называл старыми названиями), там поднялся и вышел. Итого 16 минут, поездка на эскалаторах заняла по 3 минуты, сама поездка на поезде заняла 3 минуты. Дольше всего ждал сам поезд на платформе, минут 7.
Но всё же по сравнению с наземным транспортом в час пик выигрыш во времени, имхо, есть значительный.
Но всё же по сравнению с наземным транспортом в час пик выигрыш во времени, имхо, есть значительный.
- GelezinisVilkas
- Сообщения: 3734
- Зарегистрирован: 15 май 2015, 12:19
- Станция метро: Дунайская
Re: Путиловская
Яндекс сейчас показывает 15 минут на автобусе и на трамвае.
Если не ждать автобус и трамвай, а уже быть в нём, то даже быстрее получится.
Так как ходьба по коридору пересадки займёт больше 3 минут.
Если не ждать автобус и трамвай, а уже быть в нём, то даже быстрее получится.
Так как ходьба по коридору пересадки займёт больше 3 минут.
-
Адмирал
- Сообщения: 2297
- Зарегистрирован: 07 окт 2014, 21:16
- Станция метро: Театральная
- Откуда: Санкт-Петербург
Re: Путиловская
Автобус может встать в пробке, а трамвай - долго толкаться среди других трамваев в Автово.
Так что думаю, то на то и выйдет
Так что думаю, то на то и выйдет
- GelezinisVilkas
- Сообщения: 3734
- Зарегистрирован: 15 май 2015, 12:19
- Станция метро: Дунайская
- ButanAnim
- Сообщения: 335
- Зарегистрирован: 21 сен 2024, 15:49
- Станция метро: Театральная
- telegram: https://t.me/Baltsiets
Re: Путиловская
Недавно забор всё таки поставили, но только к МНХ. Ещё пара-тройка штук стоит в сторонке.
Жду когда эти черти откроют Театральную.
- ButanAnim
- Сообщения: 335
- Зарегистрирован: 21 сен 2024, 15:49
- Станция метро: Театральная
- telegram: https://t.me/Baltsiets
Re: Путиловская
Кстати, может ли кто-нибудь подсказать, абсолютно на всех новых станциях проявляются с пола какие-то пятна. Я сомневаюсь что это следы протечек, тем более откуда им там взяться? кто знает, расскажите пожалуйста.
Жду когда эти черти откроют Театральную.
- ButanAnim
- Сообщения: 335
- Зарегистрирован: 21 сен 2024, 15:49
- Станция метро: Театральная
- telegram: https://t.me/Baltsiets
Re: Путиловская
В переходе кстати, на некоторых кронштейнах карнизного освещения присутствуют серые накладки, а на некоторых отсутствуют.
Жду когда эти черти откроют Театральную.
- NeytiriMD
- Сообщения: 60
- Зарегистрирован: 29 янв 2017, 16:29
- Станция метро: -------
- Откуда: Москва
Re: Путиловская
Насколько понимаю, это из-за того, что влажность на станции отличается от влажности в карьере и на складе, плюс при укладке используется влажный раствор. Такое встречается примерно везде, где укладывают натуральный камень, но со временем проходит.
- darkglare
- Сообщения: 2145
- Зарегистрирован: 26 ноя 2006, 07:31
- Станция метро: Автово
- Откуда: Питер
Re: Путиловская
станция понравилась больше Юго-Западной, хотя изначально переживал, что из-за обилия черного она будет выглядеть тесной. абсолютно нет - за счет освещения (по крайней мере, нынешнего) она очень яркая, даже ослепляюще - пока полированные полы не станут более матовыми от обуви пассажиров. в отличие от ЮЗ у нее определенно есть свой колорит, хотя это и странно звучит по отношению к монохромной отделке. также надеюсь, вестибюль Путиловской не постигнет со временем участь Достоевской и ПлАНа-2 и ее не начнут закрывать раньше времени и по выходным. хотя понятно, что 90% трафика станции - пересадочный...