Шушары (Южная)

Модератор: Nomernoy

Закрыто
Аватара пользователя
karhu
Сообщения: 3938
Зарегистрирован: 31 дек 2008, 19:14
Станция метро: Василеостровская
Откуда: Санкт-Петербург

Re: Шушары (Южная)

Сообщение karhu »

Пумяух**, имеется ввиду внутренний контур и купол.
Они есть, например на той же Улице Дыбенко. Даже гермозатворы имеются.
"Ключик на 60 дайте, пожалуйста".
Аватара пользователя
Metroschemes
Сообщения: 6502
Зарегистрирован: 22 окт 2005, 04:19
last_fm: Metroschemes
Станция метро: Парнас
Откуда: Питер
Контактная информация:

Re: Шушары (Южная)

Сообщение Metroschemes »

Парнас тоже из кирпича делали.
Всего за месяц ЗЕНИТ взял три трофея и одну станцию метро!
Заходите на мой сайт: Схема метро - История метрополитенов в схемах!
ВанекСПб
Сообщения: 19
Зарегистрирован: 10 дек 2008, 10:57

Re: Шушары (Южная)

Сообщение ВанекСПб »

А чем Вас кирпич то не устраивает???? Наверное если будет кирпич а не монолит, то сон не сон будет )))))))))))))
Аватара пользователя
Михаил
Сообщения: 4333
Зарегистрирован: 17 май 2004, 10:20
Станция метро: Лиговский Проспект-2
Откуда: Питер

Re: Шушары (Южная)

Сообщение Михаил »

Прогресс строительства станции с галереями и стартового котлована.
Вложения
25 апреля 2013
25 апреля 2013
7 августа 2013
7 августа 2013
19 мая 2014
19 мая 2014
20 сентября 2014
20 сентября 2014
Аватара пользователя
karhu
Сообщения: 3938
Зарегистрирован: 31 дек 2008, 19:14
Станция метро: Василеостровская
Откуда: Санкт-Петербург

Re: Шушары (Южная)

Сообщение karhu »

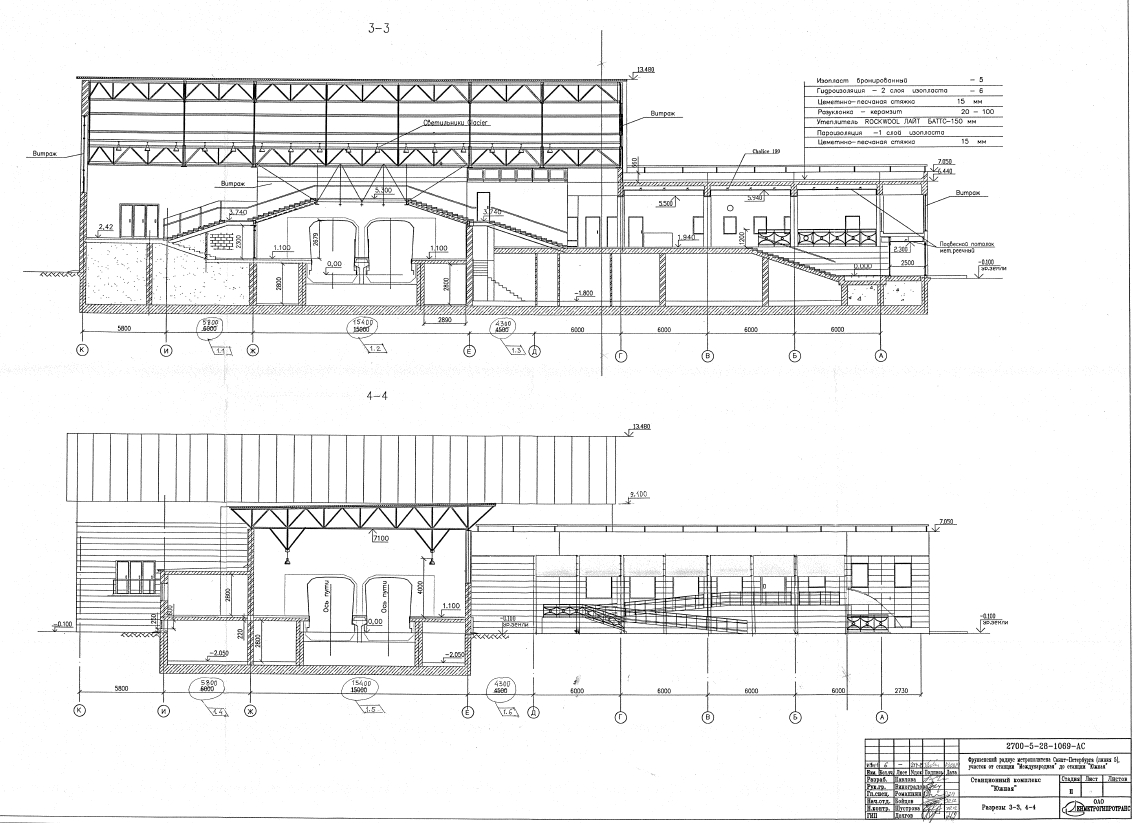
Из КД.
Juznaya-1.jpg

Juznaya-2.jpg

Juznaya-3.jpg

Juznaya-4.jpg

juznaja.jpg
"Ключик на 60 дайте, пожалуйста".
Аватара пользователя
russobalt-t
Сообщения: 898
Зарегистрирован: 27 июл 2007, 21:18
Станция метро: Площадь Восстания
Откуда: Село Децкое))

Re: Шушары (Южная)

Сообщение russobalt-t »

Интересно, разработчики в курсе, с какой стороны у подавляющего большинства трамваев двери расположены?
Аватара пользователя
в40
Профессионал
Профессионал
Сообщения: 14816
Зарегистрирован: 05 фев 2009, 19:46
Станция метро: Проспект Большевиков
Откуда: Дачное

Re: Шушары (Южная)

Сообщение в40 »

Ну, видимо, они мечтают что здесь будут ходить двухсторонние трамваи...
О=О=О=О=О=О=О=О=О=О=О=О=О=О=О=О=О=О=О
Аватара пользователя
Svetofor
Сообщения: 449
Зарегистрирован: 29 мар 2013, 20:27
Станция метро: Ручьи

Re: Шушары (Южная)

Сообщение Svetofor »

в40 писал(а):они мечтают что здесь будут ходить двухсторонние трамваи...

(оффтоп) Вполне возможно, если учесть, что это будет конечная остановка ЛРТ. По Дальневосточному такие трамваи уже ходят.
НеВе - "бархатный" путь!
Аватара пользователя
ArtTrapeza
Сообщения: 834
Зарегистрирован: 30 дек 2006, 11:56
Станция метро: Проспект Просвещения

Re: Шушары (Южная)

Сообщение ArtTrapeza »

Проезд всё-таки Автозаводский, а не Автозаводской (см. схему организации движения).
Аватара пользователя
karhu
Сообщения: 3938
Зарегистрирован: 31 дек 2008, 19:14
Станция метро: Василеостровская
Откуда: Санкт-Петербург

Re: Шушары (Южная)

Сообщение karhu »

Источник
shush.jpg

11.11.2014
"Ключик на 60 дайте, пожалуйста".
Аватара пользователя
Ericine
Сообщения: 471
Зарегистрирован: 08 фев 2009, 14:08
Станция метро: Проспект Славы
Откуда: Санкт-Петербург

Re: Шушары (Южная)

Сообщение Ericine »

russobalt-t писал(а):Интересно, разработчики в курсе, с какой стороны у подавляющего большинства трамваев двери расположены?

Кроме косяка с трамваями, ещё одна печальная тенденция для нашего города: велодорожка опять из ниоткуда в никуда. Почему через ж/д-то не перемахнуть, спрашивается?
Аватара пользователя
mx
Профессионал
Профессионал
Сообщения: 4139
Зарегистрирован: 14 сен 2005, 21:32
Станция метро: -------
Откуда: 59`50N 30`25E

Re: Шушары (Южная)

Сообщение mx »

Проезжая по кольцу обратил внимание - построили "вентшахту №628" около стартового котлована. Квадратный "домик" с шатровой крышей.
Всё потому, что кто-то слишком много ест!
Аватара пользователя
Gornyi
Сообщения: 230
Зарегистрирован: 25 ноя 2013, 11:27
Станция метро: Путиловская

Re: Шушары (Южная)

Сообщение Gornyi »

Возведение вестибюля станции Южная (Шушары) 31.03.2015
Вложения
31.03.2015
31.03.2015
31.03.2015
31.03.2015
Чау-чау
Сообщения: 2593
Зарегистрирован: 26 ноя 2011, 19:20
Станция метро: Шкиперская

Re: Шушары (Южная)

Сообщение Чау-чау »

От сплошного остекления вдоль пасс. платформ не отказались? Просто сравниваю первое фото с http://www.blog-fiesta.com/uploads/slid ... 0W1WlU.jpg и высота кладки стен кажется ужЕ высоковатой.
Аватара пользователя
mx
Профессионал
Профессионал
Сообщения: 4139
Зарегистрирован: 14 сен 2005, 21:32
Станция метро: -------
Откуда: 59`50N 30`25E

Re: Шушары (Южная)

Сообщение mx »

Это старый вариант проекта. Текущий буквально несколькими постами выше :) Характерные полукруги нижней границы остекления хорошо видны на фото.
Всё потому, что кто-то слишком много ест!
Закрыто

Вернуться в «Строительство и проектирование»