mx писал(а):Объявили конкурс на корректировку проектной документации. Срок исполнения - 23.09.2020.
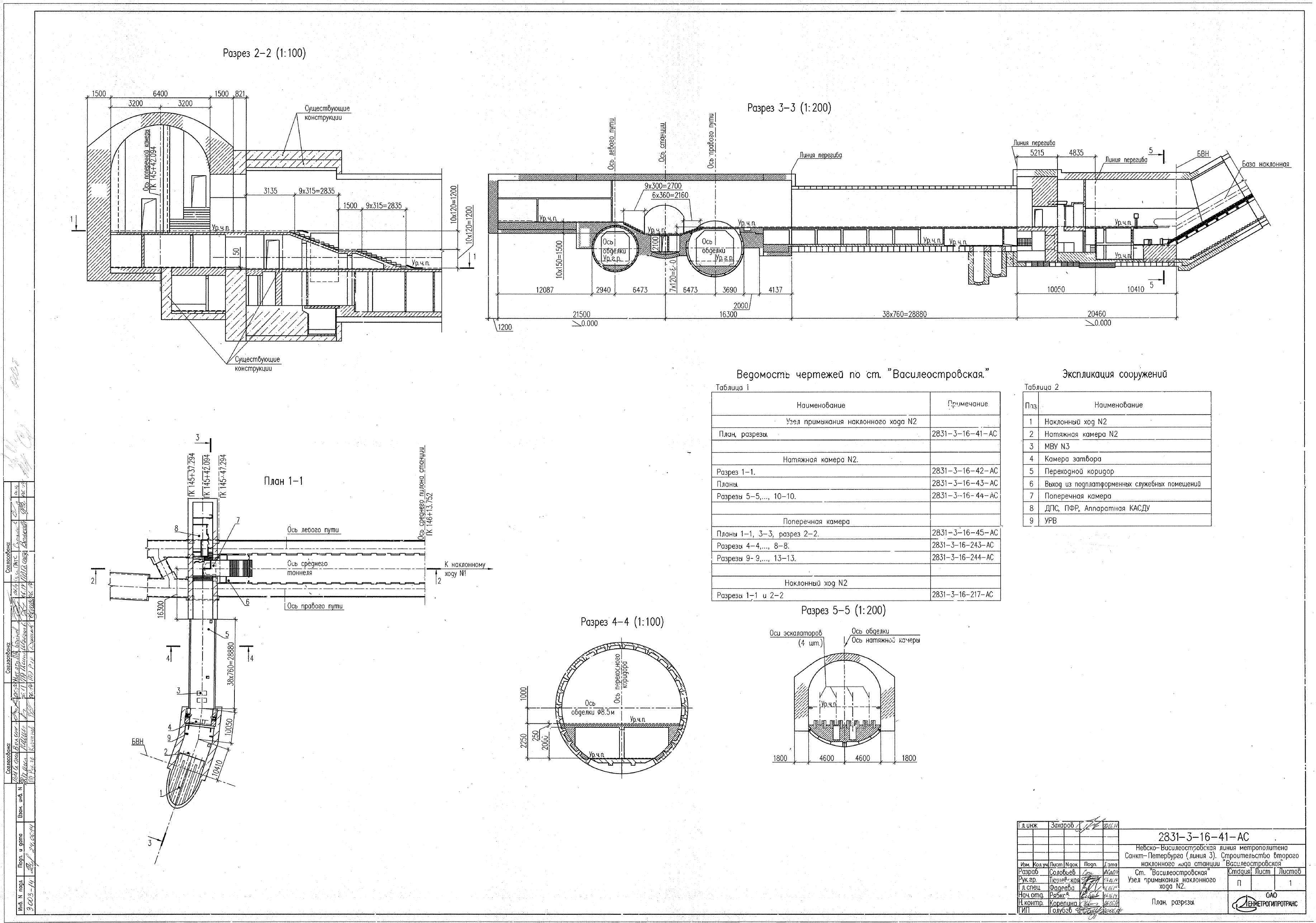
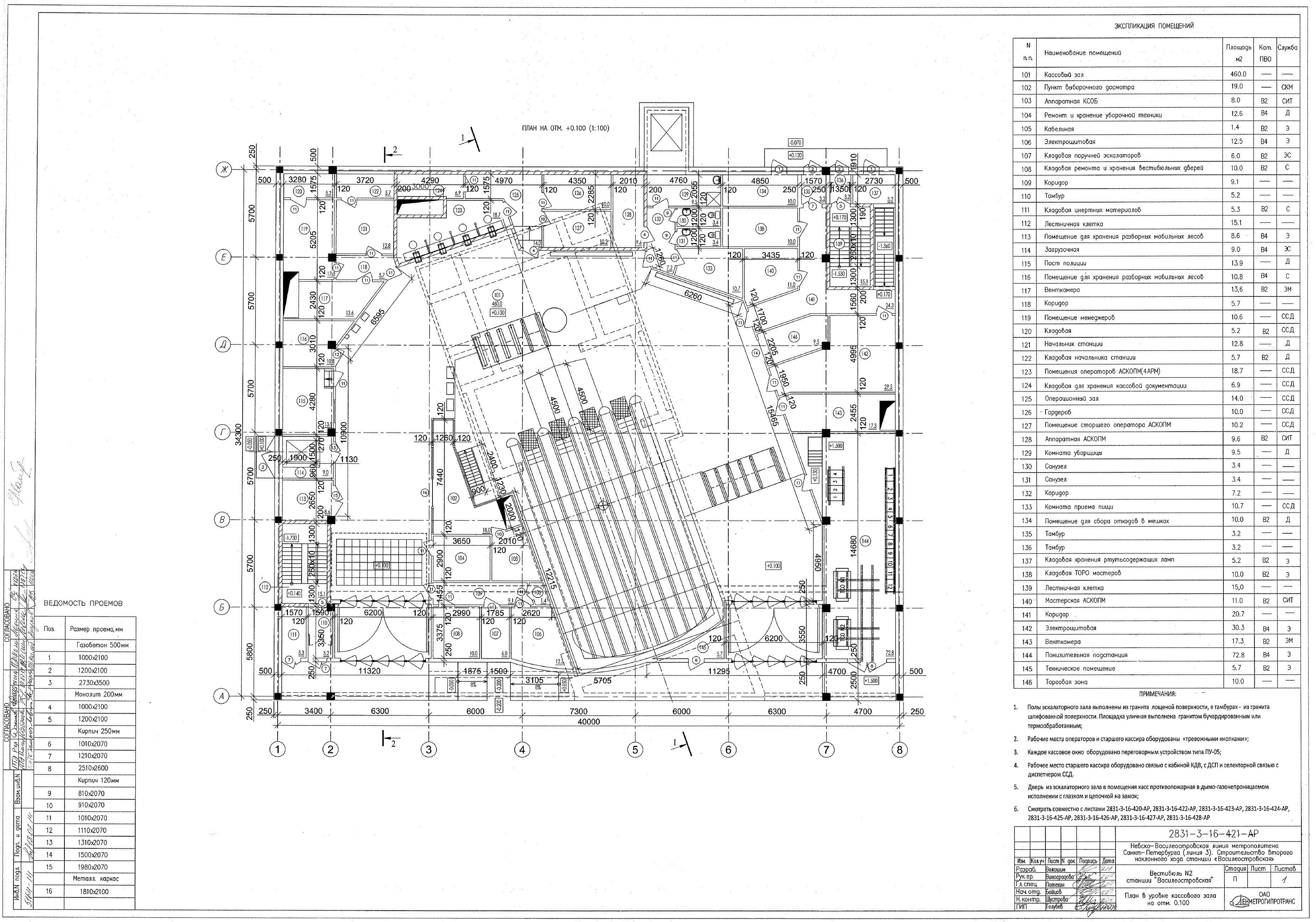
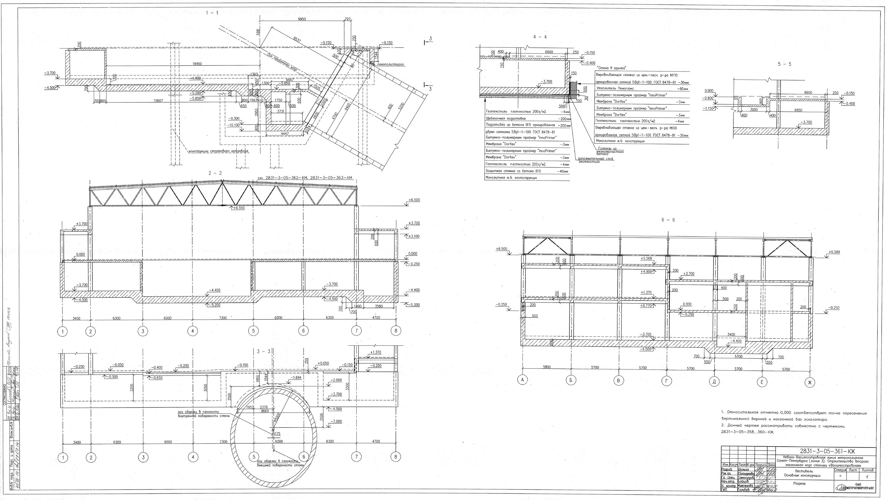
Схемы из конкурсной документации. Проект, разработанный в 2013 году, который сейчас корректируют:
Модератор: Nomernoy
mx писал(а):Объявили конкурс на корректировку проектной документации. Срок исполнения - 23.09.2020.


GelezinisVilkas писал(а):Что мешает поставить эскалаторы с платформы в поперечную камеру?
MaksegZ писал(а):Мне вот интересно, у нас когда-нибудь начнут делать проекты станций глубокого заложения, доступные для маломобильных категорий, я понимаю,что сложно приспособить старые станции, но лепить с нуля проекты, которые этого не учитывают в принципе?
GelezinisVilkas писал(а):Хотя уже сейчас на некоторых пересадках ничего не мешает ставить лифты.

GelezinisVilkas писал(а):Может и начнут, когда поймут что надо делать 3 эскалатора и лифт вместо 4-х эскалаторов в наклонах.
GelezinisVilkas писал(а):Может и начнут, когда поймут что надо делать 3 эскалатора и лифт вместо 4-х эскалаторов в наклонах.