Новокрестовская
Модератор: Nomernoy
-
Manhattan
- Сообщения: 1721
- Зарегистрирован: 20 сен 2012, 21:39
- Станция метро: Приморская
Re: Новокрестовская
Наверное же и станция будет приподнята над землей, как Приморская например? Как ни крути, а тут (в отличие от той же Приморской) непосредственная близость к заливу.
- слон
- Сообщения: 840
- Зарегистрирован: 08 апр 2005, 17:53
- last_fm: MetroFan
- Откуда: Восстания, Ал.Невского, Чернышевская
Re: Новокрестовская
Станция будет находится на глубине порядка 25 метров, да и "Приморская", на сколько я помню, тоже подземная станция...
- Kaamoos
- Сообщения: 9826
- Зарегистрирован: 04 июн 2012, 19:33
- Станция метро: Крестовский Остров
- Откуда: Ленинград
- karhu
- Сообщения: 3938
- Зарегистрирован: 31 дек 2008, 19:14
- Станция метро: Василеостровская
- Откуда: Санкт-Петербург
Re: Новокрестовская
Ну, понятно же, что речь о выходах.
Хотя скорее ограничатся гермозатворами.
Хотя скорее ограничатся гермозатворами.
Последний раз редактировалось karhu 18 фев 2015, 14:18, всего редактировалось 1 раз.
"Ключик на 60 дайте, пожалуйста".
- в40
- Профессионал

- Сообщения: 14816
- Зарегистрирован: 05 фев 2009, 19:46
- Станция метро: Проспект Большевиков
- Откуда: Дачное
Re: Новокрестовская
Все лестничные спуски в подземные вестибюли устраиваются на некотором возвышении по отношению к тротуарам (чтобы во время ливней или снеготаяния вода не затекала).
Кроме того, гермозатворы при наличии подземных вестибюлей ставятся в обязательном порядке (посмотрите планировку подземных вестибюлей строящихся "Проспекта Славы" и "Дунайской").
Лестничные спуски "Спортивной" по отношению к уровню воды тоже не слишком высоко расположены.
Кроме того, гермозатворы при наличии подземных вестибюлей ставятся в обязательном порядке (посмотрите планировку подземных вестибюлей строящихся "Проспекта Славы" и "Дунайской").
Лестничные спуски "Спортивной" по отношению к уровню воды тоже не слишком высоко расположены.
О=О=О=О=О=О=О=О=О=О=О=О=О=О=О=О=О=О=О
- karhu
- Сообщения: 3938
- Зарегистрирован: 31 дек 2008, 19:14
- Станция метро: Василеостровская
- Откуда: Санкт-Петербург
Re: Новокрестовская
Если присмотреться, то можно рассмотреть как делают форшахту под стену в грунте.
"Ключик на 60 дайте, пожалуйста".
- Horror
- Сообщения: 970
- Зарегистрирован: 26 апр 2009, 11:11
- Станция метро: Осиновая Роща
Re: Новокрестовская
karhu писал(а):Хотя скорее ограничатся гермозатворами.
В случае наводнения, скорее всего, ограничатся мешками с песком.
А если серьёзно, то этот намыв - одна из самых низких точек в городе. А КЗС, хоть и работает чётко, но не панацея. Странно, что не догадались запроектировать хотя бы небольшой стилобат.
Лучший способ избавиться от своего недостатка - это преподнести его всем в виде достоинства.
- Ignat
- Сообщения: 432
- Зарегистрирован: 28 окт 2010, 02:29
- last_fm: Ta6ypeTKo
- Станция метро: Большеохтинская
- Контактная информация:
Re: Новокрестовская
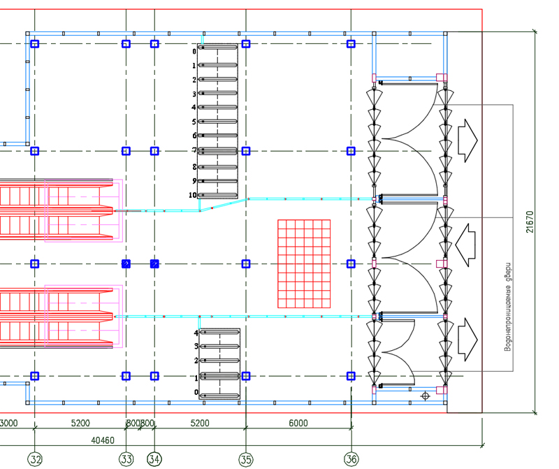
Абсолютная отметка уровня земли у входов в вестибюль +3.200. Плюс одна ступенька высотой 150 мм.
А от наводнения проектом предусмотрены некие специальные водонепроницаемые двери в тамбуре между обычными:
А от наводнения проектом предусмотрены некие специальные водонепроницаемые двери в тамбуре между обычными:
-
mmx358
- Сообщения: 231
- Зарегистрирован: 25 сен 2013, 20:26
- Станция метро: -------
Re: Новокрестовская
А вообще можно было шлюзы сделать. Несколько пассажиров заходят в камеру, двери за ними закрываются, вода откачивается и открываются двери уже в вестибюль. Ну и обратно примерно так же, только вода закачивается до уровня снаружи
Последний раз редактировалось mmx358 18 фев 2015, 23:49, всего редактировалось 1 раз.
- mx
- Профессионал

- Сообщения: 4138
- Зарегистрирован: 14 сен 2005, 21:32
- Станция метро: -------
- Откуда: 59`50N 30`25E
Re: Новокрестовская
karhu писал(а):Если присмотреться, то можно рассмотреть как делают форшахту под стену в грунте.
Никакой форшахты ещё и в помине нет. Делают щебёночные сваи для укрепления грунтового массива (это не для метро).
Horror писал(а):А если серьёзно, то этот намыв - одна из самых низких точек в городе.
Я б так уверенно не говорил. Высота обваловочной дамбы по верху - 4.5 метра от уровня воды. Да и вообще очень советую скачать и почитать проектную документацию. Я всегда так делаю и общетехнических знаний для понимания достаточно. Документация по проекту очень тщательно выполнена, со множеством исследований в самую глубь веков. Волновая нагрузка и возможность затопления, естественно, обсчитаны в первую очередь.
Всё потому, что кто-то слишком много ест!
- karhu
- Сообщения: 3938
- Зарегистрирован: 31 дек 2008, 19:14
- Станция метро: Василеостровская
- Откуда: Санкт-Петербург
Re: Новокрестовская
mx, вам лучше знать может быть.
Но мои слова в данном случае не основаны на предположениях, а тем более на предположениях по фотографии.
На ней можно и ничего не увидеть.
Форшахту должны были только начать.
Но мои слова в данном случае не основаны на предположениях, а тем более на предположениях по фотографии.
На ней можно и ничего не увидеть.
Форшахту должны были только начать.
"Ключик на 60 дайте, пожалуйста".
- mx
- Профессионал

- Сообщения: 4138
- Зарегистрирован: 14 сен 2005, 21:32
- Станция метро: -------
- Откуда: 59`50N 30`25E
Re: Новокрестовская
Да, виноват, не понял
Я думал речь идёт о буровой. Имеете в виду отмеченый участок? Действительно при большом приближении похоже на форшахту. Единственное что непонятно - текущий уровень не окончательный, ещё будут намывать. Получается будут ставить опалубку для подъёма стены на плановый уровень?
Я думал речь идёт о буровой. Имеете в виду отмеченый участок? Действительно при большом приближении похоже на форшахту. Единственное что непонятно - текущий уровень не окончательный, ещё будут намывать. Получается будут ставить опалубку для подъёма стены на плановый уровень?Всё потому, что кто-то слишком много ест!
- Horror
- Сообщения: 970
- Зарегистрирован: 26 апр 2009, 11:11
- Станция метро: Осиновая Роща
Re: Новокрестовская
mx писал(а):Horror писал(а):А если серьёзно, то этот намыв - одна из самых низких точек в городе.
Высота обваловочной дамбы по верху - 4.5 метра от уровня воды. Да и вообще очень советую скачать и почитать проектную документацию. Я всегда так делаю и общетехнических знаний для понимания достаточно.
Извиняюсь, не знал. Был искренне уверен, что намыв сделают уровнем один в один с Крестовским островом. (Начинаю понимать, почему "Новокрестовскую" ставят чуть ли не на один уровень со станциями мелкого заложения.) К сожалению, читать документацию такого уровня у меня пока знаний не хватает. Не тот склад ума. Ну да ладно, проехали.
Ignat писал(а): А от наводнения проектом предусмотрены некие специальные водонепроницаемые двери в тамбуре между обычными:
Это часом не такие же, как в переходах прочих подземных вестибюлях ("Невский Проспект-1", "Спортивная" и др.)? Впрочем, их наличие в проекте сомнению не подвергалось. Местоположение только несколько странное... между группами дверей.
Всё-таки Петербург к решению проблемы потенциального подтопления подходит основательно. Даже при действующем КЗС.
Лучший способ избавиться от своего недостатка - это преподнести его всем в виде достоинства.
-
Randy
- Сообщения: 3170
- Зарегистрирован: 25 янв 2005, 13:31
Re: Новокрестовская
КЗС не панацея. Ошибка в прогнозе, поздняя команда на закрытие дамбы - и вуаля.
- в40
- Профессионал

- Сообщения: 14816
- Зарегистрирован: 05 фев 2009, 19:46
- Станция метро: Проспект Большевиков
- Откуда: Дачное
Re: Новокрестовская
Randy, не надо усложнять. Закрыть дамбу - дело нескольких минут.
О=О=О=О=О=О=О=О=О=О=О=О=О=О=О=О=О=О=О