Беговая (Улица Савушкина)

Модератор: Nomernoy

Закрыто
Аватара пользователя
71-153
Сообщения: 303
Зарегистрирован: 20 май 2007, 17:29
Станция метро: Бухарестская
Откуда: Санкт-Петербург

Re: Беговая (Улица Савушкина)

Сообщение 71-153 »

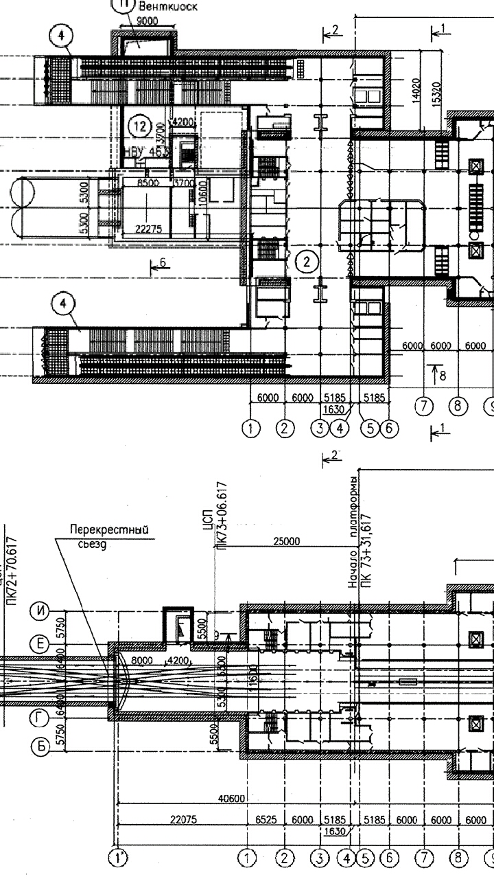
Проем под выход на фото расположен именно в осях 1-5.
Пунктир - это конструкции 463-го "ствола"
Аватара пользователя
в40
Профессионал
Профессионал
Сообщения: 14816
Зарегистрирован: 05 фев 2009, 19:46
Станция метро: Проспект Большевиков
Откуда: Дачное

Re: Беговая (Улица Савушкина)

Сообщение в40 »

Если точнее - узел примыкания НВУ-463 к двухпутному тоннелю.
О=О=О=О=О=О=О=О=О=О=О=О=О=О=О=О=О=О=О
Аватара пользователя
karhu
Сообщения: 3938
Зарегистрирован: 31 дек 2008, 19:14
Станция метро: Василеостровская
Откуда: Санкт-Петербург

Re: Беговая (Улица Савушкина)

Сообщение karhu »

Значит узел примыкания к двухпутному тоннелю удлинили от оси 1'-1 до 1'-4.
А проёмы скорее всего перенесли в оси 1-3.
Я скорее всего ошибаюсь.

Но есть одно "но".
На последней фотографии точно часть узла примыкания к ДТ и НВУ с проёмами выхода на поверхность, т.к.тименно здесь примняются расстрелы, нет свай колонн, да и визульно она уже.

Но самый главный аргумен - что в той части, что на чертеже в осях 1-5, уже давно залиты плиты +15.900 и +10.400.

Либо на фотографии не проёмы выхода.
Вложения
Screenshot_2017-04-17-05-33-38.jpg
"Ключик на 60 дайте, пожалуйста".
Аватара пользователя
Nomernoy
Профессионал
Профессионал
Сообщения: 5204
Зарегистрирован: 10 окт 2005, 16:25
Станция метро: Театральная
Откуда: Санкт-Петербург

Re: Беговая (Улица Савушкина)

Сообщение Nomernoy »

У меня вопрос появился: а какие мероприятия/сооружения на станции «Беговая» предусмотрены для перехода маневровых машинистов? То, что в межпутной стене возможны проёмы, это понятно, а что с мостиком вдоль путей?
Изображение
Аватара пользователя
в40
Профессионал
Профессионал
Сообщения: 14816
Зарегистрирован: 05 фев 2009, 19:46
Станция метро: Проспект Большевиков
Откуда: Дачное

Re: Беговая (Улица Савушкина)

Сообщение в40 »

Его не будет.
О=О=О=О=О=О=О=О=О=О=О=О=О=О=О=О=О=О=О
Аватара пользователя
Nomernoy
Профессионал
Профессионал
Сообщения: 5204
Зарегистрирован: 10 окт 2005, 16:25
Станция метро: Театральная
Откуда: Санкт-Петербург

Re: Беговая (Улица Савушкина)

Сообщение Nomernoy »

в40
Как же быть машинисту в таком случае? Бежать спринтом через эскалаторы наверх и затем опять вниз? Как парность увеличенную-то соблюдать?
Изображение
engineer kukan
Сообщения: 35
Зарегистрирован: 10 мар 2017, 14:09
Станция метро: Бестужевская

Re: Беговая (Улица Савушкина)

Сообщение engineer kukan »

может быть за перекрёстным съездом, как это было в девяткино, когда 2ой путь был на ремонте.
Аватара пользователя
Danyokkk
Сообщения: 166
Зарегистрирован: 08 июл 2009, 14:33
Станция метро: Проспект Большевиков

Re: Беговая (Улица Савушкина)

Сообщение Danyokkk »

Рендер "Беговой" из журнала "Строительство и городское хозяйство".

http://stroypuls.ru/gradostroitelnaya-politika/134183/
Вложения
Savushkina.jpg
Следующая станция - Театральная ! ! !
Аватара пользователя
в40
Профессионал
Профессионал
Сообщения: 14816
Зарегистрирован: 05 фев 2009, 19:46
Станция метро: Проспект Большевиков
Откуда: Дачное

Re: Беговая (Улица Савушкина)

Сообщение в40 »

Nomernoy писал(а):Как же быть машинисту в таком случае? Бежать спринтом через эскалаторы наверх и затем опять вниз? Как парность увеличенную-то соблюдать?

engineer kukan писал(а):может быть за перекрёстным съездом, как это было в девяткино, когда 2ой путь был на ремонте.

Мостик за перекрёстным съездом (в тоннеле) итак будет. Но он может использоваться только в межпик, когда интервалы между поездами довольно большие. А при малых интервалах, видимо, машинисты будут меняться на "Новокрестовской". А участок "Новокрестовская" - "Беговая" (с последующим оборотом поездов) будет обслуживаться несколькими маневровыми бригадами.

ЗЫ: кстати, это ещё один минус в репутацию станций с боковыми платформами для линий с двухпутными перегонными тоннелями.
О=О=О=О=О=О=О=О=О=О=О=О=О=О=О=О=О=О=О
Аватара пользователя
71-153
Сообщения: 303
Зарегистрирован: 20 май 2007, 17:29
Станция метро: Бухарестская
Откуда: Санкт-Петербург

Re: Беговая (Улица Савушкина)

Сообщение 71-153 »

Сегодня залит первый участок плиты перекрытия на отм. +6.4 (оси 16-20)
Аватара пользователя
karhu
Сообщения: 3938
Зарегистрирован: 31 дек 2008, 19:14
Станция метро: Василеостровская
Откуда: Санкт-Петербург

Re: Беговая (Улица Савушкина)

Сообщение karhu »

71-153, спасибо за информацию.
Но хочется знать точно, залили полностю плиту в осях 16-20 и В-Ж, в том числе и над разобранным двухпутным тоннелем?
"Ключик на 60 дайте, пожалуйста".
Аватара пользователя
71-153
Сообщения: 303
Зарегистрирован: 20 май 2007, 17:29
Станция метро: Бухарестская
Откуда: Санкт-Петербург

Re: Беговая (Улица Савушкина)

Сообщение 71-153 »

Пока залит пролет только над двухпутным тоннелем, через пару дней зальют и бока.
Аватара пользователя
karhu
Сообщения: 3938
Зарегистрирован: 31 дек 2008, 19:14
Станция метро: Василеостровская
Откуда: Санкт-Петербург

Re: Беговая (Улица Савушкина)

Сообщение karhu »

Интерсно, на что опирается опалубка, на двутавры и леса, или только на леса?
"Ключик на 60 дайте, пожалуйста".
Аватара пользователя
karhu
Сообщения: 3938
Зарегистрирован: 31 дек 2008, 19:14
Станция метро: Василеостровская
Откуда: Санкт-Петербург

Re: Беговая (Улица Савушкина)

Сообщение karhu »

Жалко, что станция обделена частым освещением сроительства.

По неподверждённой информации уже разбирают лоток двухпутного тоннеля.
"Ключик на 60 дайте, пожалуйста".
Аватара пользователя
karhu
Сообщения: 3938
Зарегистрирован: 31 дек 2008, 19:14
Станция метро: Василеостровская
Откуда: Санкт-Петербург

Re: Беговая (Улица Савушкина)

Сообщение karhu »

На сколько я понял, в кадре передвижная опалубка на рельсовом пути!
Фотографии довольно свежие.

Автор
Вложения
fxPYxGMwnTI.jpg
m0tyKQfBwNM.jpg
6fKJhGyJOd8.jpg
PcNpB0pzr_8.jpg
"Ключик на 60 дайте, пожалуйста".
Закрыто

Вернуться в «Строительство и проектирование»