в40 писал(а):Из подземного вестибюля (не с платформы!) при пожаре никто не будет спускаться вниз на станцию, чтобы выйти в город. Тем более, если эскалаторы будут выключены.
В вестибюле на -1 этаже гореть нечему, если только в служебных помещениях где расположены кассы, но и тогда вторая лестница не нужна. В зоне "перехода" и траволатора гореть может только двигатели траволатора или оплётка кабелей, так как все эти вещи в шкафах или под полом, то выход дыма при таком расположении небольшой. На работе регулярно горят движки и кабели, потому что старые и дряхлые, больше вони чем дыма.
Вторая лестница была бы актуальна только при горении на площади в несколько квадратных метров, гранит и бетон гореть не может, по этому нужны горючие материалы или жидкости, а для этого нужно что бы на лестницу свалился небольшой бензовоз и загорелся, но такое возможно только в 1 миллиардном случае. То есть в срок физической эксплуатации этого сооружения это не реально.
Тем более напомню, что -1 этаж сквозной и можно пройти по служебным помещениям из одного вестибюля в другой.
А так расположение двух лестниц в 20 метрах друг от друга никак на пожарную безопасность не влияет.
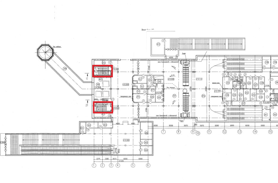
Так же на плане станции есть две лестницы соединяющие -1 и -2 этажи платформ, но не имеющие выхода на поверхность

Что мешало вывести эти лестницы на поверхность и сделать эвакуационными выходами?
Я ещё могу понять, если бы лестницы были расположены вот так, прямо из кассового зала, но так как в это реализовано, это бесполезно полностью. Так как ничего не мешает дыму заполнить всё пространство перехода полностью и исключить полностью возможность воспользоваться обеими лестницами.