Новокрестовская
Модератор: Nomernoy
- в40
- Профессионал

- Сообщения: 14816
- Зарегистрирован: 05 фев 2009, 19:46
- Станция метро: Проспект Большевиков
- Откуда: Дачное
Re: Новокрестовская
Конструктив станции по отношению к УГР не менялся.
О=О=О=О=О=О=О=О=О=О=О=О=О=О=О=О=О=О=О
- mx
- Профессионал

- Сообщения: 4139
- Зарегистрирован: 14 сен 2005, 21:32
- Станция метро: -------
- Откуда: 59`50N 30`25E
Re: Новокрестовская
karhu писал(а):Действительно это так?
Было ли по другому до решения протаскивать "Надежду" через станцию?
Действительно это так. И так было с самого начала.
P.S. Кстати насчёт ширины котлована на "Ульянке" - конструктив "Савушкина" явно будет типовым для двухпутных тоннелей. Суммарная ширина со "стенами в грунте" - 25 метров (без учёта уширений в местах установки эскалаторов).
Всё потому, что кто-то слишком много ест!
- karhu
- Сообщения: 3938
- Зарегистрирован: 31 дек 2008, 19:14
- Станция метро: Василеостровская
- Откуда: Санкт-Петербург
Re: Новокрестовская
Спасибо за ответы.
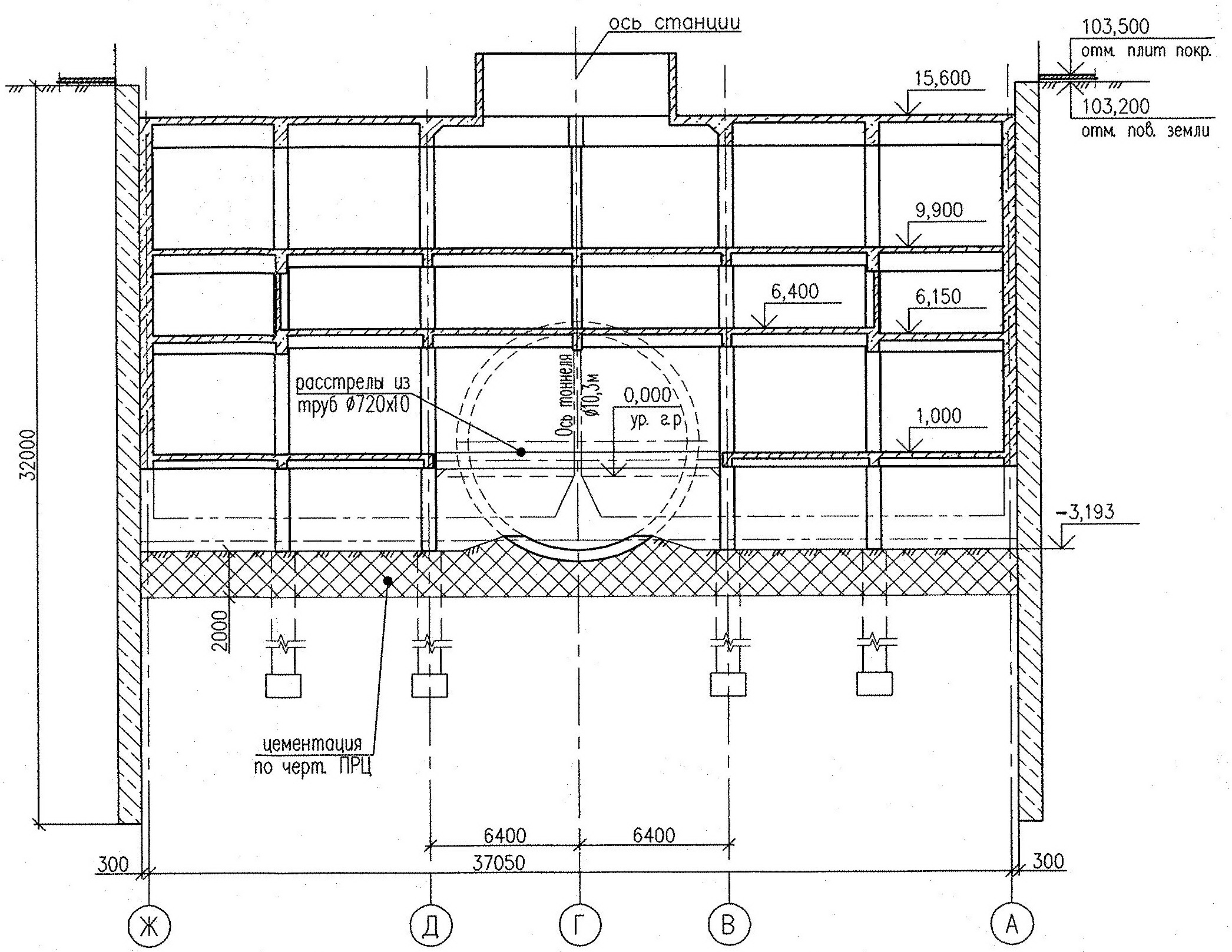
Выше на схеме Новокрестовской свод двухпутного тоннеля таки пересекает перекрытие +6,400 в осях Д-В, на месте которого сейчас смонтированы расстрелы между колоннами.
Как думаете, что будет предпринято для того чтобы они не мешали проходу щита?
Их будут окончательно демонтировать для прохода щита?
Будут ли они смонтированы снова после прохода "Надежды"?
Или при залитых плитах в осях Ж-Д, В-А. они уже не особо играют роли?
Или же придумана хитрая схема, и при заходе на Новокрестовскую, щит опустят на ВУТы, которые могут быть расположены ниже лотка, показанного на схемы, а при выходе с Новокрестовской поднимут щит на проектную ось?
Выше на схеме Новокрестовской свод двухпутного тоннеля таки пересекает перекрытие +6,400 в осях Д-В, на месте которого сейчас смонтированы расстрелы между колоннами.
Как думаете, что будет предпринято для того чтобы они не мешали проходу щита?
Их будут окончательно демонтировать для прохода щита?
Будут ли они смонтированы снова после прохода "Надежды"?
Или при залитых плитах в осях Ж-Д, В-А. они уже не особо играют роли?
Или же придумана хитрая схема, и при заходе на Новокрестовскую, щит опустят на ВУТы, которые могут быть расположены ниже лотка, показанного на схемы, а при выходе с Новокрестовской поднимут щит на проектную ось?
"Ключик на 60 дайте, пожалуйста".
- mx
- Профессионал

- Сообщения: 4139
- Зарегистрирован: 14 сен 2005, 21:32
- Станция метро: -------
- Откуда: 59`50N 30`25E
Re: Новокрестовская
Щит не будет идти ниже лотка, указанного на схеме. По факту отлит временный профиль лотковой плиты, потом сверху зальют окончательный. При этом общие габариты не изменяли.
Расстрелы (по моим соображениям) будут снимать/приподнимать по одному при проходе щита и потом ставить назад до окончательной заливки перекрытия.
Расстрелы (по моим соображениям) будут снимать/приподнимать по одному при проходе щита и потом ставить назад до окончательной заливки перекрытия.
Всё потому, что кто-то слишком много ест!
- в40
- Профессионал

- Сообщения: 14816
- Зарегистрирован: 05 фев 2009, 19:46
- Станция метро: Проспект Большевиков
- Откуда: Дачное
Re: Новокрестовская
mx писал(а):Расстрелы (по моим соображениям) будут снимать/приподнимать по одному при проходе щита и потом ставить назад до окончательной заливки перекрытия.
За нижний ярус расстрелов можно особо не переживать, т.к. в законченном виде конструктива станции в этом уровне всё равно никаких распоров нет (боковые платформы не связаны с междупутной стеной).
А, вот, с верхним уровнем немного сложнее. Ведь, снимать расстрелы потребуется не только для протаскивания щита, но также и для трёх тележек с технологическим оборудованием. Длина участка с демонтированными расстрелами будет определяться максимальной удалённостью наиболее высоких узлов оборудования ТПМК от рабочего органа.
О=О=О=О=О=О=О=О=О=О=О=О=О=О=О=О=О=О=О
- Andrey_K
- Сообщения: 706
- Зарегистрирован: 06 июн 2013, 17:20
- Станция метро: Большеохтинская
Re: Новокрестовская
Может вопрос и не совсем по теме. Какова длина щита от режущего органа до конца хвоста?
НеВу на КВЛ!
- в40
- Профессионал

- Сообщения: 14816
- Зарегистрирован: 05 фев 2009, 19:46
- Станция метро: Проспект Большевиков
- Откуда: Дачное
Re: Новокрестовская
Где-то на страницах форума проскакивала информация о длине ТПМК. Точно не помню - в районе 70 метров.
О=О=О=О=О=О=О=О=О=О=О=О=О=О=О=О=О=О=О
- mx
- Профессионал

- Сообщения: 4139
- Зарегистрирован: 14 сен 2005, 21:32
- Станция метро: -------
- Откуда: 59`50N 30`25E
Re: Новокрестовская
в40 писал(а):За нижний ярус расстрелов можно особо не переживать, т.к. в законченном виде конструктива станции в этом уровне всё равно никаких распоров нет (боковые платформы не связаны с междупутной стеной).
А, вот, с верхним уровнем немного сложнее.
За нижний уровень (в уровне платформы) действительно можно не переживать - там расстрелы не установлены. Вопрос про третье перекрытие в уровне +6.400 Сейчас расстрелы там стоят. В габарит попадает самая верхушка оболочки и возможно ещё кое-что из оборудования (кабина управления, тельферная эстакада). Это оборудование может временно можно и снять. Впрочем скоро узнаем, недолго осталось.
Всё потому, что кто-то слишком много ест!
- karhu
- Сообщения: 3938
- Зарегистрирован: 31 дек 2008, 19:14
- Станция метро: Василеостровская
- Откуда: Санкт-Петербург
Re: Новокрестовская
В декабрьском номере Метростроителя много написано про все строящиеся объекты .
Жаль, что в PDF на сайте не выложили.
Щит собираются пригнать на НВК в январе, т.к. в газете обещали большую статью про эту операцию в январском номере.
Жаль, что в PDF на сайте не выложили.
Щит собираются пригнать на НВК в январе, т.к. в газете обещали большую статью про эту операцию в январском номере.
"Ключик на 60 дайте, пожалуйста".
- Brayn
- Сообщения: 945
- Зарегистрирован: 17 янв 2007, 10:40
- Станция метро: Девяткино
Re: Новокрестовская
karhu писал(а):В декабрьском номере Метростроителя много написано про все строящиеся объекты .
Жаль, что в PDF на сайте не выложили.
Щит собираются пригнать на НВК в январе, т.к. в газете обещали большую статью про эту операцию в январском номере.
Если есть печатный экземпляр то можете отсканировать и выложить?
Фанат Naruto!
-
Санёк
- Сообщения: 117
- Зарегистрирован: 04 ноя 2014, 00:38
- Станция метро: Проспект Славы
- karhu
- Сообщения: 3938
- Зарегистрирован: 31 дек 2008, 19:14
- Станция метро: Василеостровская
- Откуда: Санкт-Петербург
Re: Новокрестовская
Brayn писал(а):karhu писал(а):В декабрьском номере Метростроителя много написано про все строящиеся объекты .
Жаль, что в PDF на сайте не выложили.
Щит собираются пригнать на НВК в январе, т.к. в газете обещали большую статью про эту операцию в январском номере.
Если есть печатный экземпляр то можете отсканировать и выложить?
Только так.
"Ключик на 60 дайте, пожалуйста".
-
Manhattan
- Сообщения: 1721
- Зарегистрирован: 20 сен 2012, 21:39
- Станция метро: Приморская
Re: Новокрестовская
Надеюсь что метростроевцы снимут сие грандиозное событие (вход и проход щита) и на фото и на видео, и сделают тамйлапс. Надеюсь что уже все приготовлено, закреплены камеры...
На самом деле уникальный шанс для Метростроя сделать классный рекламный фильм, про стадион вроде делали - а тут непосредственно профильная деятельность, да еще такой суперщит... ждем с нетерпением.
На самом деле уникальный шанс для Метростроя сделать классный рекламный фильм, про стадион вроде делали - а тут непосредственно профильная деятельность, да еще такой суперщит... ждем с нетерпением.
- ooo
- Сообщения: 1909
- Зарегистрирован: 15 янв 2014, 21:47
- Станция метро: Петроградская
Re: Новокрестовская
Приготовились встречать в январе (2:30-2:48 в сюжете Вестей)
не верь, не бойся, не проси
- Andrey_K
- Сообщения: 706
- Зарегистрирован: 06 июн 2013, 17:20
- Станция метро: Большеохтинская
Re: Новокрестовская
После демонтажа щита, как будут использовать демонтажный котлован за НВК?
НеВу на КВЛ!