Путиловская
Модератор: Nomernoy
-
Cypok
- Сообщения: 2151
- Зарегистрирован: 29 мар 2006, 15:52
- Контактная информация:
Re: Путиловская
Продолжаются работы на строительной площадке ствола шахты №5 Кировско-Выборгской линии Петербургского метрополитена.
Недалеко от станции метро «Кировский завод», в сквере за ДК им. Газа, находится вентиляционный киоск шахты № 5, сооруженный при строительстве первой очереди Ленинградского метрополитена.
Из-за ограждения строительной площадки начинает виднеться копёр из железобетонных тюбингов над стволом шахты.
Затем вокруг копра будет сооружён горный комплекс, чтобы через эту шахту вести переустройство нижнего вентиляционного узла (НВУ) станции «Кировский завод».
НВУ будет перестроен в часть пересадочного коридора на станцию «Путиловская» 6 линии.
https://t.me/podzemnik_spb/3991
Из комментов в чате Подземника: https://t.me/c/1792427918/118313.
Переход.
Продолжается строительство вестибюля станции «Путиловская» Красносельско-Калининской линии Петербургского метрополитена.
Завершено возведение внешних стен вестибюля. Продолжаются работы по устройству фасада здания со стороны улицы Васи Алексеева. В будущем кассовом зале установлены строительные леса для поддержания опалубки верхнего перекрытия. Продолжается армирование балок и плиты будущего железобетонного перекрытия центральной части здания.
https://t.me/podzemnik_spb/3995
Из комментов в чате Подземника: https://t.me/c/1792427918/118615.
Переход.
Оттуда же: https://t.me/c/1792427918/118662
Переход.
Недалеко от станции метро «Кировский завод», в сквере за ДК им. Газа, находится вентиляционный киоск шахты № 5, сооруженный при строительстве первой очереди Ленинградского метрополитена.
Из-за ограждения строительной площадки начинает виднеться копёр из железобетонных тюбингов над стволом шахты.
Затем вокруг копра будет сооружён горный комплекс, чтобы через эту шахту вести переустройство нижнего вентиляционного узла (НВУ) станции «Кировский завод».
НВУ будет перестроен в часть пересадочного коридора на станцию «Путиловская» 6 линии.
https://t.me/podzemnik_spb/3991
Из комментов в чате Подземника: https://t.me/c/1792427918/118313.
Переход.
Продолжается строительство вестибюля станции «Путиловская» Красносельско-Калининской линии Петербургского метрополитена.
Завершено возведение внешних стен вестибюля. Продолжаются работы по устройству фасада здания со стороны улицы Васи Алексеева. В будущем кассовом зале установлены строительные леса для поддержания опалубки верхнего перекрытия. Продолжается армирование балок и плиты будущего железобетонного перекрытия центральной части здания.
https://t.me/podzemnik_spb/3995
Из комментов в чате Подземника: https://t.me/c/1792427918/118615.
Переход.
Оттуда же: https://t.me/c/1792427918/118662
Переход.
Ну так сразу и не скажешь... да и вообще не люблю о себе говорить... скромный видно...
- darkglare
- Сообщения: 2146
- Зарегистрирован: 26 ноя 2006, 07:31
- Станция метро: Автово
- Откуда: Питер
Re: Путиловская
монументальный труд! и ваш, как репортера - но все же, в первую очередь, метростроителей, работающих на сооружении этого пересадочного узла. вот теперь более чем понятно, почему им стоило бы вручить награды (а еще лучше - заплатить как топ-менеджерам всяким). как говорится, все "удовольствия" в одном флаконе на обустройстве этого перехода/переустройстве НВУ... но очень круто!Ignat писал(а): ↑20 янв 2025, 16:40 Сделал фотообзор строительства пересадочного узла "Путиловской", заодно добавив подробную историю его проектирования:
https://vk.com/@lmctrans-kkl-2025-01
PS. жаль, с другой стороны, что для пассажиров он станет одним из самых неудобных и вызовет множество вполне справедливой с юзерской позиции критики...
-
Cypok
- Сообщения: 2151
- Зарегистрирован: 29 мар 2006, 15:52
- Контактная информация:
Re: Путиловская
Из комментов в чате Подземника: https://t.me/c/1792427918/118871.
Оттуда же: https://t.me/c/1792427918/118962.
Оттуда же: https://t.me/c/1792427918/118962.
Ну так сразу и не скажешь... да и вообще не люблю о себе говорить... скромный видно...
- Иван Волков
- Сообщения: 654
- Зарегистрирован: 11 фев 2006, 16:41
- Станция метро: Дунайская
Re: Путиловская
Надеюсь, внешний вид шахте №5 вернут исторический после её использования в новом строительстве.
- Ignat
- Сообщения: 432
- Зарегистрирован: 28 окт 2010, 02:29
- last_fm: Ta6ypeTKo
- Станция метро: Большеохтинская
- Контактная информация:
Re: Путиловская
Венткиоск ВШ-5 расположен со смещением от ствола, его работы никак не затрагивают.Иван Волков писал(а): ↑21 янв 2025, 23:17 Надеюсь, внешний вид шахте №5 вернут исторический после её использования в новом строительстве.
-
Cypok
- Сообщения: 2151
- Зарегистрирован: 29 мар 2006, 15:52
- Контактная информация:
Re: Путиловская
Из комментов в чате Подземника: https://t.me/c/1792427918/119254.
Ну так сразу и не скажешь... да и вообще не люблю о себе говорить... скромный видно...
-
Евгений Степной
- Сообщения: 3
- Зарегистрирован: 28 дек 2024, 18:51
- Станция метро: Шкиперская
Re: Путиловская
Правда ли что на Путиловской приостановлены работы на некоторых участках? Слышал что есть какие-то проблемы и они решатся только после начала весеннего сезона?
-
Cypok
- Сообщения: 2151
- Зарегистрирован: 29 мар 2006, 15:52
- Контактная информация:
Re: Путиловская
Впервые слышу. Скинь источник информации.Правда ли что на Путиловской приостановлены работы на некоторых участках?
Ну так сразу и не скажешь... да и вообще не люблю о себе говорить... скромный видно...
-
Cypok
- Сообщения: 2151
- Зарегистрирован: 29 мар 2006, 15:52
- Контактная информация:
Re: Путиловская
Ну так сразу и не скажешь... да и вообще не люблю о себе говорить... скромный видно...
- mx
- Профессионал

- Сообщения: 4139
- Зарегистрирован: 14 сен 2005, 21:32
- Станция метро: -------
- Откуда: 59`50N 30`25E
Re: Путиловская
Опалубка под плиту перекрытия... Интересное место, везде монолит.
Всё потому, что кто-то слишком много ест!
-
Cypok
- Сообщения: 2151
- Зарегистрирован: 29 мар 2006, 15:52
- Контактная информация:
Re: Путиловская
Продолжается строительство вестибюля станции «Путиловская» Красносельско-Калининской линии Петербургского метрополитена.
Завершены работы по сооружению основных конструкций фасада здания со стороны улицы Васи Алексеева. Идут работы по устройству фасада.
Продолжается армирование балок и плиты будущего железобетонного перекрытия центральной части здания.
https://t.me/podzemnik_spb/4101
Завершены работы по сооружению основных конструкций фасада здания со стороны улицы Васи Алексеева. Идут работы по устройству фасада.
Продолжается армирование балок и плиты будущего железобетонного перекрытия центральной части здания.
https://t.me/podzemnik_spb/4101
Ну так сразу и не скажешь... да и вообще не люблю о себе говорить... скромный видно...
-
Cypok
- Сообщения: 2151
- Зарегистрирован: 29 мар 2006, 15:52
- Контактная информация:
Re: Путиловская
Из комментов в чате Подземника: https://t.me/c/1792427918/121595.
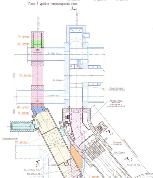
За этой стенкой Кировский завод, но не торец, а поперечная камера.
За этой стенкой Кировский завод, но не торец, а поперечная камера.
Ну так сразу и не скажешь... да и вообще не люблю о себе говорить... скромный видно...
-
Cypok
- Сообщения: 2151
- Зарегистрирован: 29 мар 2006, 15:52
- Контактная информация:
Re: Путиловская
Из комментов в чате Подземника: https://t.me/c/1792427918/121799 (фото), https://t.me/c/1792427918/121801 (текст).
В час ночи закончили заливать последнюю часть перекрытия, осталось только залить ещё часть ограждения и видимо на крыше всё.
Оттуда же: https://t.me/c/1792427918/121886.
Оттуда же: https://t.me/c/1792427918/121950.
Оттуда же: https://t.me/c/1792427918/121972.
Ствол вш 5, забутованная довоенная выработка.
В час ночи закончили заливать последнюю часть перекрытия, осталось только залить ещё часть ограждения и видимо на крыше всё.
Оттуда же: https://t.me/c/1792427918/121886.
Оттуда же: https://t.me/c/1792427918/121950.
Оттуда же: https://t.me/c/1792427918/121972.
Ствол вш 5, забутованная довоенная выработка.
Ну так сразу и не скажешь... да и вообще не люблю о себе говорить... скромный видно...
-
alex78rus
- Сообщения: 294
- Зарегистрирован: 28 янв 2010, 10:16
- Станция метро: Автово
Re: Путиловская
Извиняюсь за глупый вопрос, а где это место если смотреть на схему?Cypok писал(а): ↑28 янв 2025, 23:09 Из комментов в чате Подземника: https://t.me/c/1792427918/121595.
За этой стенкой Кировский завод, но не торец, а поперечная камера.
- в40
- Профессионал

- Сообщения: 14816
- Зарегистрирован: 05 фев 2009, 19:46
- Станция метро: Проспект Большевиков
- Откуда: Дачное