Маяковская
- КВЛолюбитель
- Сообщения: 239
- Зарегистрирован: 03 дек 2012, 20:34
- Станция метро: Академическая
- Откуда: Электродепо Северное
Re: Маяковская
Кстати заметил интересный факт,что Маяковская единственная станция первой очереди НВЛ, у которой отсутствует вент.шахта наклонного хода в довесок к станционной в отличии от оставшихся трёх.И ещё интересует, для каких целей в камере съезда на обратном своде вент.установки? (на многих фотографиях в интернете можно найти) Для вентилирования ССВ?
Круче гор могут быть только горы, на которых ты ещё не бывал(с)
- в40
- Профессионал

- Сообщения: 14815
- Зарегистрирован: 05 фев 2009, 19:46
- Станция метро: Проспект Большевиков
- Откуда: Дачное
Re: Маяковская
Похоже, что для вентиляции ССВ 1-3. Где-то в 2003-2004 годах мне пару раз довелось пройтись по ней. И этих вентиляторов тогда ещё не было. А в середней части ССВ из-за плохого проветривания воздух был довольно затхлый.
О=О=О=О=О=О=О=О=О=О=О=О=О=О=О=О=О=О=О
- MetroGnom
- Сообщения: 6100
- Зарегистрирован: 18 ноя 2010, 16:47
- Станция метро: -------
Re: Маяковская
На станции явно пониженное напряжение - мерцание всех ламп прекрасно заметно глазу. Такого ещё не видел.
- MetroGnom
- Сообщения: 6100
- Зарегистрирован: 18 ноя 2010, 16:47
- Станция метро: -------
Re: Маяковская
Хорошо бы было заменить лампы, находящиеся непосредственно у малых эскалаторов (дугой по своду). Голые ртутные трубки, да ещё и на расстоянии вытянутой руки. Небезопасно. Да и наказуемо при проверках. Хороши бы были лампы как в наклонах после ремонта. 

-
Svjazist
- Сообщения: 843
- Зарегистрирован: 08 май 2011, 17:31
- Станция метро: Зоопарк
- Откуда: Санкт-Петербург
Re: Маяковская
https://spbdnevnik.ru/news/2018-08-29/mayakovskuyu-zakroyut-na-remont-v-2020-godu?utm_source=yxnews&utm_medium=desktop
Следующая станция, которую в Петербурге закроют на ремонт, – это «Маяковская». По планам метрополитена это произойдет в первом квартале 2020 года.
«Сейчас у нас заключен договор на проектирование станции метро «Маяковская». И готовится конкурс на проектирование наклонного хода станции метро «Московская-2», – рассказал «ПД» начальник производственного отдела службы инфраструктурных программ метрополитена Алексей Мичурин.
Сейчас проект по ремонту «Маяковской» уже готов и проходит экспертизу. Ремонт по аналогии с «Академической» продолжится 11 месяцев.
Что касается «Московской-2», то ее ремонт будет идти практически параллельно. Обе станции метрополитен планирует отремонтировать в 2020 году.
Также в планах – ремонт станции «Технологический институт». Как пояснили в метрополитене, заказчиком на ремонт этой станции выступает КРТИ.
«Они будут заниматься «Техноложкой» до конца 2020 года», – пояснил Мичурин.
Следующая станция, которую в Петербурге закроют на ремонт, – это «Маяковская». По планам метрополитена это произойдет в первом квартале 2020 года.
«Сейчас у нас заключен договор на проектирование станции метро «Маяковская». И готовится конкурс на проектирование наклонного хода станции метро «Московская-2», – рассказал «ПД» начальник производственного отдела службы инфраструктурных программ метрополитена Алексей Мичурин.
Сейчас проект по ремонту «Маяковской» уже готов и проходит экспертизу. Ремонт по аналогии с «Академической» продолжится 11 месяцев.
Что касается «Московской-2», то ее ремонт будет идти практически параллельно. Обе станции метрополитен планирует отремонтировать в 2020 году.
Также в планах – ремонт станции «Технологический институт». Как пояснили в метрополитене, заказчиком на ремонт этой станции выступает КРТИ.
«Они будут заниматься «Техноложкой» до конца 2020 года», – пояснил Мичурин.
- в40
- Профессионал

- Сообщения: 14815
- Зарегистрирован: 05 фев 2009, 19:46
- Станция метро: Проспект Большевиков
- Откуда: Дачное
Re: Маяковская
Вообще-то, служба носит название инвестиционных программ, а не инфраструктурных.
О=О=О=О=О=О=О=О=О=О=О=О=О=О=О=О=О=О=О
- karhu
- Сообщения: 3938
- Зарегистрирован: 31 дек 2008, 19:14
- Станция метро: Василеостровская
- Откуда: Санкт-Петербург
- 4pet
- Сообщения: 2675
- Зарегистрирован: 13 окт 2005, 13:59
- Станция метро: Ладожская
Re: Маяковская
Технологический и-т
- MetroGnom
- Сообщения: 6100
- Зарегистрирован: 18 ноя 2010, 16:47
- Станция метро: -------
Re: Маяковская
И тут тоже, естественно, с ремонтом наклонного хода тишина?
Из интересного: сарай в центре станции (стоящий аж с 2016 года) снова сменил "срок службы": теперь до конца 2020 года. Каждый год переклеивают цифры. Не удивлюсь, если скоро и 2021 появится. Позор.
С начавшейся заменой дверей это явно никак не связано.
Из интересного: сарай в центре станции (стоящий аж с 2016 года) снова сменил "срок службы": теперь до конца 2020 года. Каждый год переклеивают цифры. Не удивлюсь, если скоро и 2021 появится. Позор.
С начавшейся заменой дверей это явно никак не связано.
- Kaamoos
- Сообщения: 9826
- Зарегистрирован: 04 июн 2012, 19:33
- Станция метро: Крестовский Остров
- Откуда: Ленинград
Re: Маяковская
Никогда не ходил по Марата у угла Невского. Там какой-то рассадник страховщиков...Если пройтись вдоль Марата по стороне, где метро, там до офисного здания стоят зазывалы на страховки, визы, какие-то там оформления и т.п. Что за дичь???
It's good to see you again!
-
Tubeman
- Сообщения: 798
- Зарегистрирован: 29 ноя 2006, 20:27
- Откуда: Питер.Московская
Re: Маяковская
На углу Марата и Стремянной финский визовый центр, на это и расчет
- MetroGnom
- Сообщения: 6100
- Зарегистрирован: 18 ноя 2010, 16:47
- Станция метро: -------
Re: Маяковская
О, этому уже больше десяти лет. Традиция, можно сказать.
Вопрос по самой станции: при открытии же на существующих светильниках были матовые стёкла-плафоны? По всей длине?
Вопрос по самой станции: при открытии же на существующих светильниках были матовые стёкла-плафоны? По всей длине?
-
Gleb
- Сообщения: 898
- Зарегистрирован: 22 май 2006, 23:11
- Станция метро: Новочеркасская
Re: Маяковская
25 марта 2020 г. ГУП "ПЕТЕРБУРГСКИЙ МЕТРОПОЛИТЕН " объявлен конкурс на выполнение работ по капитальному ремонту вестибюля и наклонного хода станции "Маяковская".
Срок окончания подачи заявок - 10 апреля 2020 г.
Начальная цена - 375 699 160,67 ₽.
Срок окончания работ в соответствии с проектом договора - 11 апреля 2021 г.
Выдержки из технического задания:
Срок окончания подачи заявок - 10 апреля 2020 г.
Начальная цена - 375 699 160,67 ₽.
Срок окончания работ в соответствии с проектом договора - 11 апреля 2021 г.
Выдержки из технического задания:
1.8. Сроки начала и окончания работ:
Начало работ: С даты заключения договора.
Окончание работ – 11.04.2021.
Раздел 2. «Требования к выполнению работы»
2.1. Описание предмета закупки, а также требования о необходимости выполнения работ в соответствии с утвержденной проектно-сметной документацией (далее – ПСД):
В ходе выполнения работ по Капитальному ремонту вестибюля и наклонного хода станции «Маяковская» будут выполняться следующие работы:
- устройство гидроизоляция и ремонт пола первого этажа вестибюля, входных/выходных тамбуров и лоджий фасада со стороны ул. Марата и Невский пр. и служебных помещений вестибюля, в том числе в связи с заменой инженерных сетей;
- ремонт гидроизоляции кровли козырька со стороны дворового фасада;
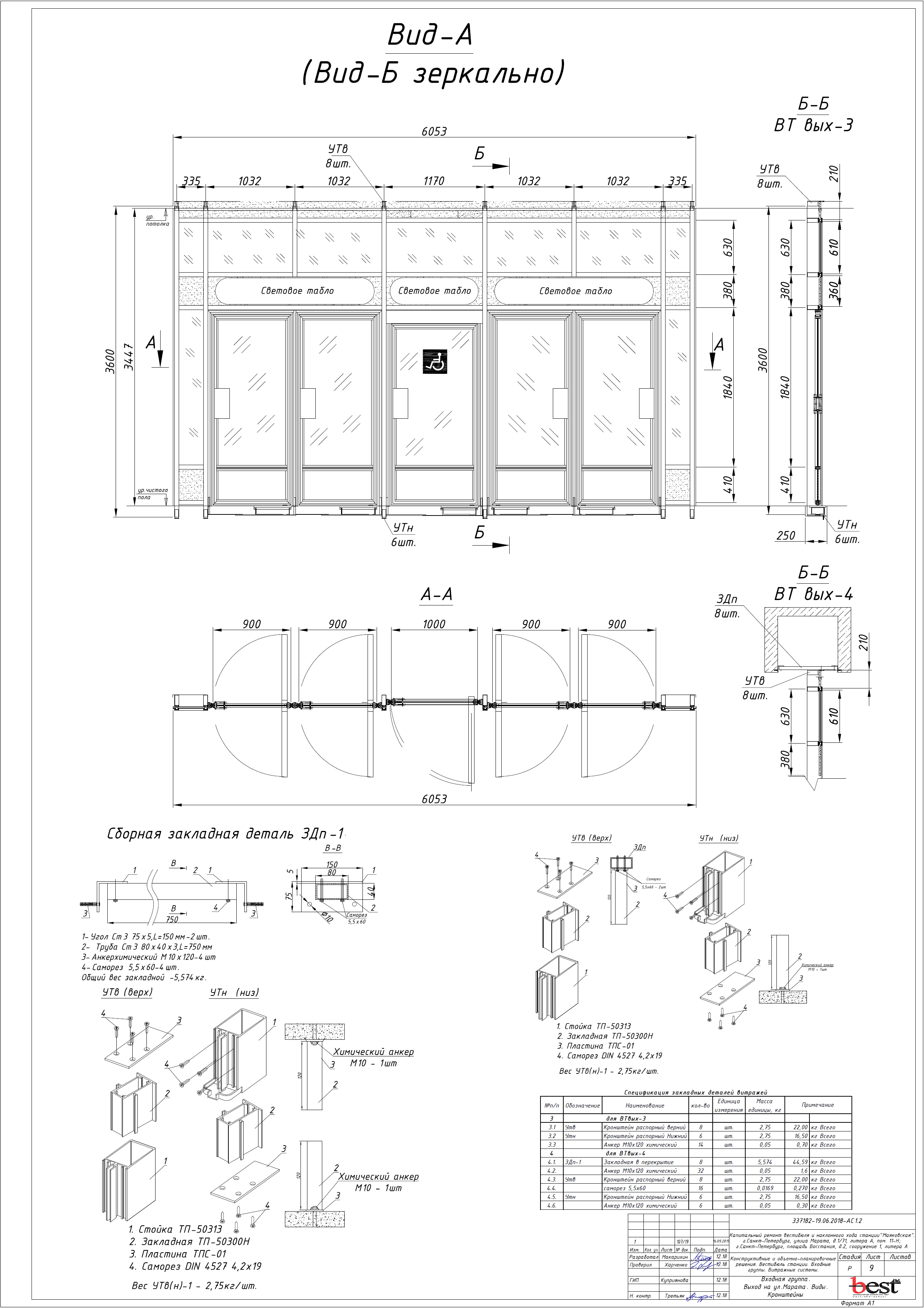
- устройство конструкций входной группы (витражи входных дверей) для перераспределения направления пассажиропотока на станцию и обеспечения доступности в вестибюли станции маломобильных групп населения для обеспечения прохода МГН;
- нагнетание инъекционных гидроизоляционных составов за пределы тюбинговой обделки наклонного хода;
- перечеканка стыков тюбинговой крепи свинцом;
- замена на аналогичные чугунных пробок и болтовых соединений тюбинговой крепи наклонного хода;
- восстановление ж.б. конструкций оснащения наклонного хода: ступени, водосборные лотки из новых аналогичных материалов;
- гидроизоляция полов и обделки натяжной камеры;
- замена водоотводящих зонтов наклонного хода и натяжной камеры.
- гидроизоляция бетонной крепи в уровне оголовка наклонного хода;
- ремонт и гидроизоляция опорных частей фундаментов эскалатора в наклонном ходе;
- ремонт с заменой отдельных элементов на аналогичные улучшающие свойства опорных узлов ферм эскалаторов;
- капитальный ремонт системы местной вентиляции. Оснащение вестибюля станции системами приточно-вытяжной вентиляцией;
- капитальный ремонт освещения;
- капитальный ремонт внутренней системы отопления, водоснабжения и водоотведения.
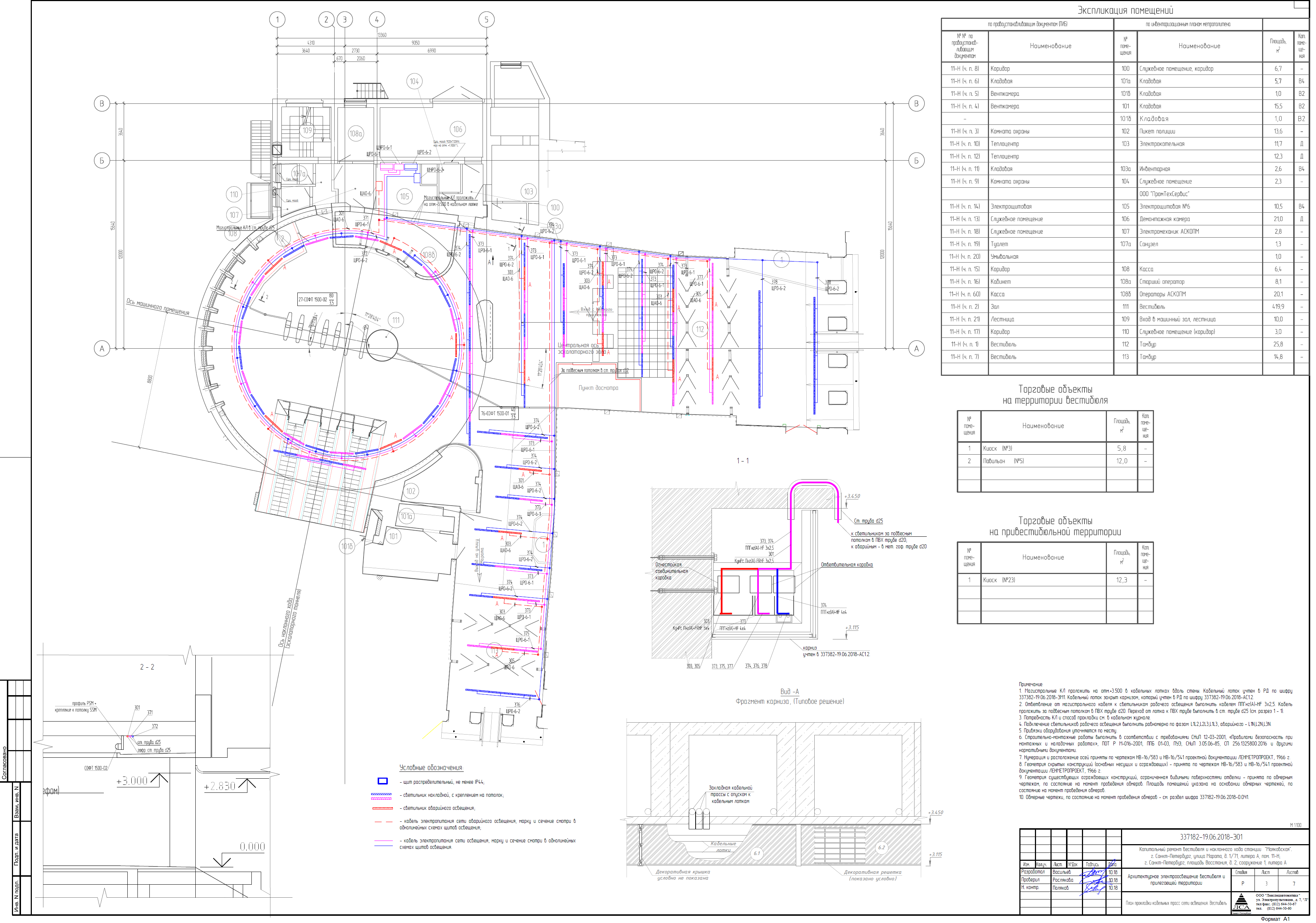
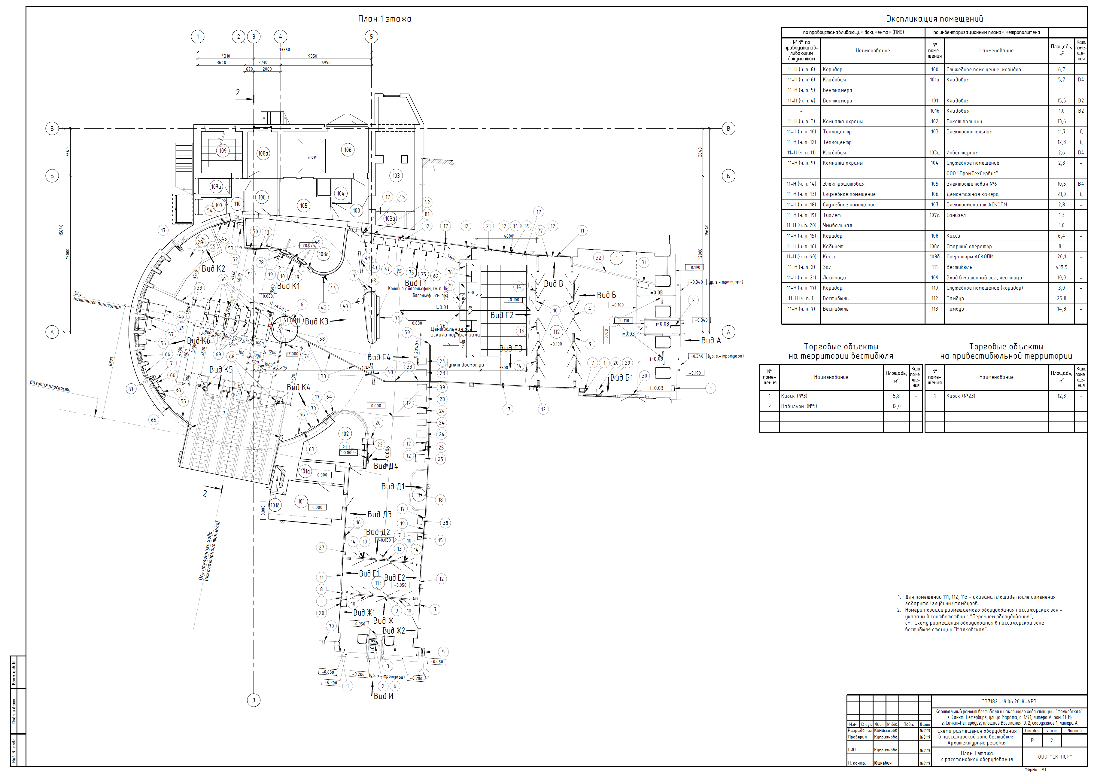
Работы необходимо выполнить в соответствии с утвержденной рабочей и сметной документацией, разработанной ООО «СК «ПСР» (шифр 337182 -19.06.2018) на капитальный ремонт вестибюля и наклонного хода станции «Маяковская».
- MetroGnom
- Сообщения: 6100
- Зарегистрирован: 18 ноя 2010, 16:47
- Станция метро: -------
Re: Маяковская
Прекрасно, с нынешним чудо-губернатором сорваны вообще все планы и сроки. Только жителям гадить может, @.
-
Gleb
- Сообщения: 898
- Зарегистрирован: 22 май 2006, 23:11
- Станция метро: Новочеркасская
Re: Маяковская
Gleb писал(а):25 марта 2020 г. ГУП "ПЕТЕРБУРГСКИЙ МЕТРОПОЛИТЕН " объявлен конкурс на выполнение работ по капитальному ремонту вестибюля и наклонного хода станции "Маяковская".
Некоторые выдержки из рабочей документации.
Генеральный план:
Стройгенплан:
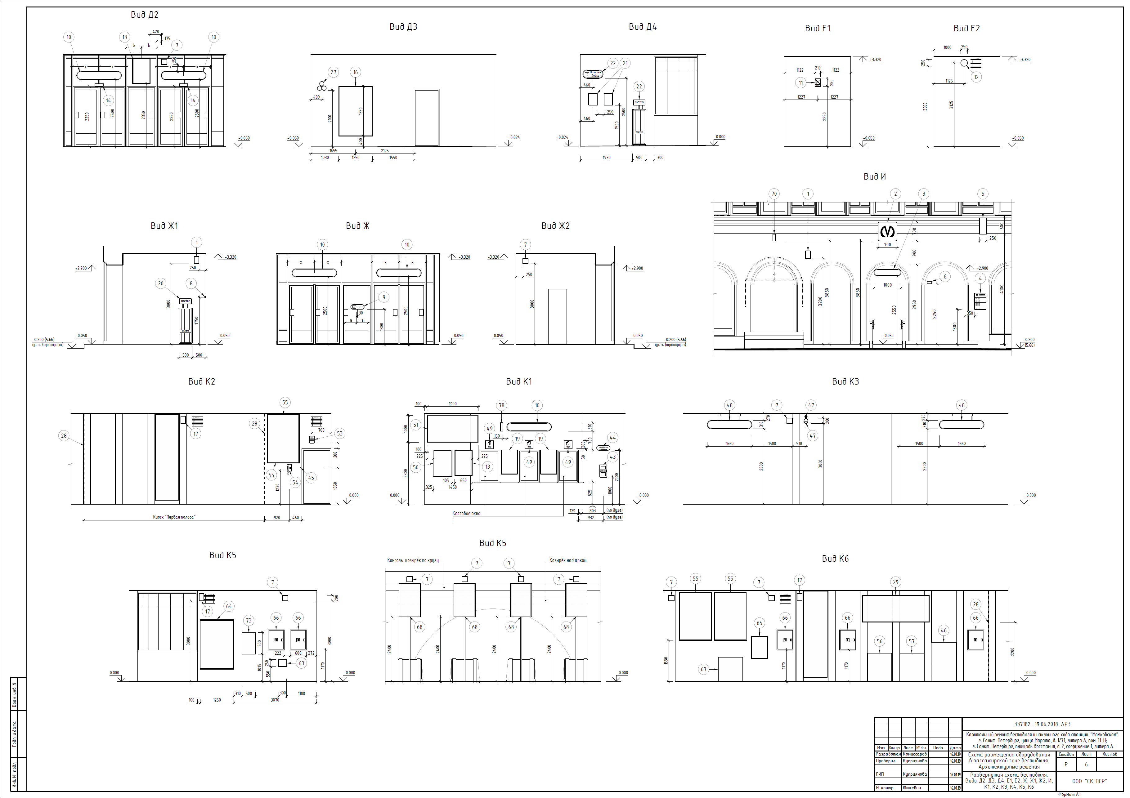
Вестибюль. Архитектурные решения:
Вестибюль. Разграничительные барьеры:
Вестибюль. Входные группы. Вход с Невского пр.:
Вестибюль. Входные группы. Выход на ул. Марата:
Вестибюль. Схемы размещения оборудования:
Наклонный ход. Разрез:
Наклонный ход. Краткая характеристика:
Наклонный ход. Схема производства работ:
Наклонный ход. Установка водоотводных зонтов:
Освещение. Архитектурное электроосвещение вестибюля. План размещения:
Освещение вестибюля. Вид:
Освещение вестибюля. Освещенность:
Освещение НХ. Вид:
Освещение. Типы применяемых светильников: