Путиловская

Модератор: Nomernoy

Ответить
Cypok
Сообщения: 1851
Зарегистрирован: 29 мар 2006, 15:52
Контактная информация:

Re: Путиловская

Сообщение Cypok »

Из комментов в чате Подземника: https://t.me/c/1792427918/151374.
5357389884471506558.jpg
5359428086971625919.jpg

Оттуда же: https://t.me/c/1792427918/151402.
5359641684285194397.jpg
Ну так сразу и не скажешь... да и вообще не люблю о себе говорить... скромный видно...
Аватара пользователя
darkglare
Сообщения: 2136
Зарегистрирован: 26 ноя 2006, 07:31
Станция метро: Автово
Откуда: Питер

Re: Путиловская

Сообщение darkglare »

в40 писал(а): 10 июн 2025, 23:32 Архитектора нужно расстрелять.
Alexsey писал(а): 13 июн 2025, 13:03 выштампованные надписи Путиловская просто жесть. Они вообще сливаются с самой отделкой. Неужели нельзя было сделать отдельными буквами?
так разве не предполагается какое-то цветовое выделение букв от остальной отделки? металлическими вставками или краской хотя бы? если нет, тогда да - "расстрелять"... %)
Аватара пользователя
GelezinisVilkas
Сообщения: 3572
Зарегистрирован: 15 май 2015, 12:19
Станция метро: Дунайская

Re: Путиловская

Сообщение GelezinisVilkas »

Видимо предполагалось, что выемки букв будут глубже и выделять их будет тень.
Но что то пошло не так.
IMG_0799.jpeg
В проекте ЛМГТ вообще возможно название не планировали.
IMG_0798.jpeg
:twisted:
Аватара пользователя
GelezinisVilkas
Сообщения: 3572
Зарегистрирован: 15 май 2015, 12:19
Станция метро: Дунайская

Re: Путиловская

Сообщение GelezinisVilkas »

в40 писал(а): 13 июн 2025, 14:02 Но они хотя бы не работают по 19-20 часов непрерывно, как эскалаторы в вестибюлях метро.
Не думаю, что есть какие то сложности в том, что бы изолировать опорные колонны каркаса здания от вестибюля. Можно вообще зону эскалаторов сделать никак не связанной даже с вестибюлем.
:twisted:
Cypok
Сообщения: 1851
Зарегистрирован: 29 мар 2006, 15:52
Контактная информация:

Re: Путиловская

Сообщение Cypok »

Из комментов в чате Подземника: https://t.me/c/1792427918/151490.

Детали эскалатора для малого наклонного хода.
Вложения
5361893484098879274.jpg
Ну так сразу и не скажешь... да и вообще не люблю о себе говорить... скромный видно...
Аватара пользователя
Alexsey
Сообщения: 884
Зарегистрирован: 25 янв 2005, 13:18
Станция метро: Парк Победы
Откуда: Санкт-Петербург метро Парк-Победы
Контактная информация:

Re: Путиловская

Сообщение Alexsey »

GelezinisVilkas писал(а): 14 июн 2025, 00:45 Видимо предполагалось, что выемки букв будут глубже и выделять их будет тень.
Но что то пошло не так.
IMG_0799.jpeg
В проекте ЛМГТ вообще возможно название не планировали.

IMG_0798.jpeg
Думаю что планировали на стене внутри под аркой
Cypok
Сообщения: 1851
Зарегистрирован: 29 мар 2006, 15:52
Контактная информация:

Re: Путиловская

Сообщение Cypok »

Из комментов в чате Подземника: https://t.me/c/1792427918/151687.

Арматура ∅20 А240 из далëких 40-х из НВУ ВШ-5.
5368543991848628743.jpg
СПб строительный: https://t.me/spb_str/2845.
5368501110895145991.jpg
5368501110895145992.jpg
5368718376110781409.jpg
5368718376110781410.jpg
Ну так сразу и не скажешь... да и вообще не люблю о себе говорить... скромный видно...
Аватара пользователя
MetroGnom
Сообщения: 6100
Зарегистрирован: 18 ноя 2010, 16:47
Станция метро: -------

Re: Путиловская

Сообщение MetroGnom »

Москвичьё вестибюль проектировало? Их так от названия Петербурга коробит?
Адмирал
Сообщения: 2250
Зарегистрирован: 07 окт 2014, 21:16
Станция метро: Юго-Западная
Откуда: Санкт-Петербург

Re: Путиловская

Сообщение Адмирал »

Само руководство ПМ, похоже, тоже его отвергает почему-то.
Аватара пользователя
MetroGnom
Сообщения: 6100
Зарегистрирован: 18 ноя 2010, 16:47
Станция метро: -------

Re: Путиловская

Сообщение MetroGnom »

Если собственная пресс-служба называет предприятие "питерской подземкой"...
Аватара пользователя
Love_metro
Сообщения: 232
Зарегистрирован: 12 фев 2017, 13:07
Станция метро: Кудрово

Re: Путиловская

Сообщение Love_metro »

Cypok писал(а): 16 июн 2025, 20:48
Арматура ∅20 А240 из далëких 40-х из НВУ ВШ-5.
Арматура в очень хорошем состоянии, можно вторично пустить на стройку)
Когда я спускаюсь в глубокую шахту на глубине 800 метров и глубже, то я начинаю слышать глубинный призрачный звук. У Вас такое случалось?
Cypok
Сообщения: 1851
Зарегистрирован: 29 мар 2006, 15:52
Контактная информация:

Re: Путиловская

Сообщение Cypok »

Из комментов в чате Подземника: https://t.me/c/1792427918/152141.

Начало завоза деталей эскалатора в малом наклоне.
5375392725223992998.jpg

Оттуда же: https://t.me/c/1792427918/152148

Строительство перехода на Кировском.
5370691054589834593.jpg

Оттуда же: https://t.me/c/1792427918/152151.

А так с другой стороны.
5375392725223993151.jpg

Оттуда же: https://t.me/c/1792427918/152180.
5375392725223993316.jpg
5375392725223993317.jpg

Оттуда же: https://t.me/c/1792427918/152206

Часть облицовки Путиловской привели в порядок.
5375392725223993617.jpg
Ну так сразу и не скажешь... да и вообще не люблю о себе говорить... скромный видно...
Аватара пользователя
GelezinisVilkas
Сообщения: 3572
Зарегистрирован: 15 май 2015, 12:19
Станция метро: Дунайская

Re: Путиловская

Сообщение GelezinisVilkas »

Строительство перехода на Кировском.
Как-то он не намного шире чем со стороны Путиловской. Тоже 4 метра в ширину останется.
:twisted:
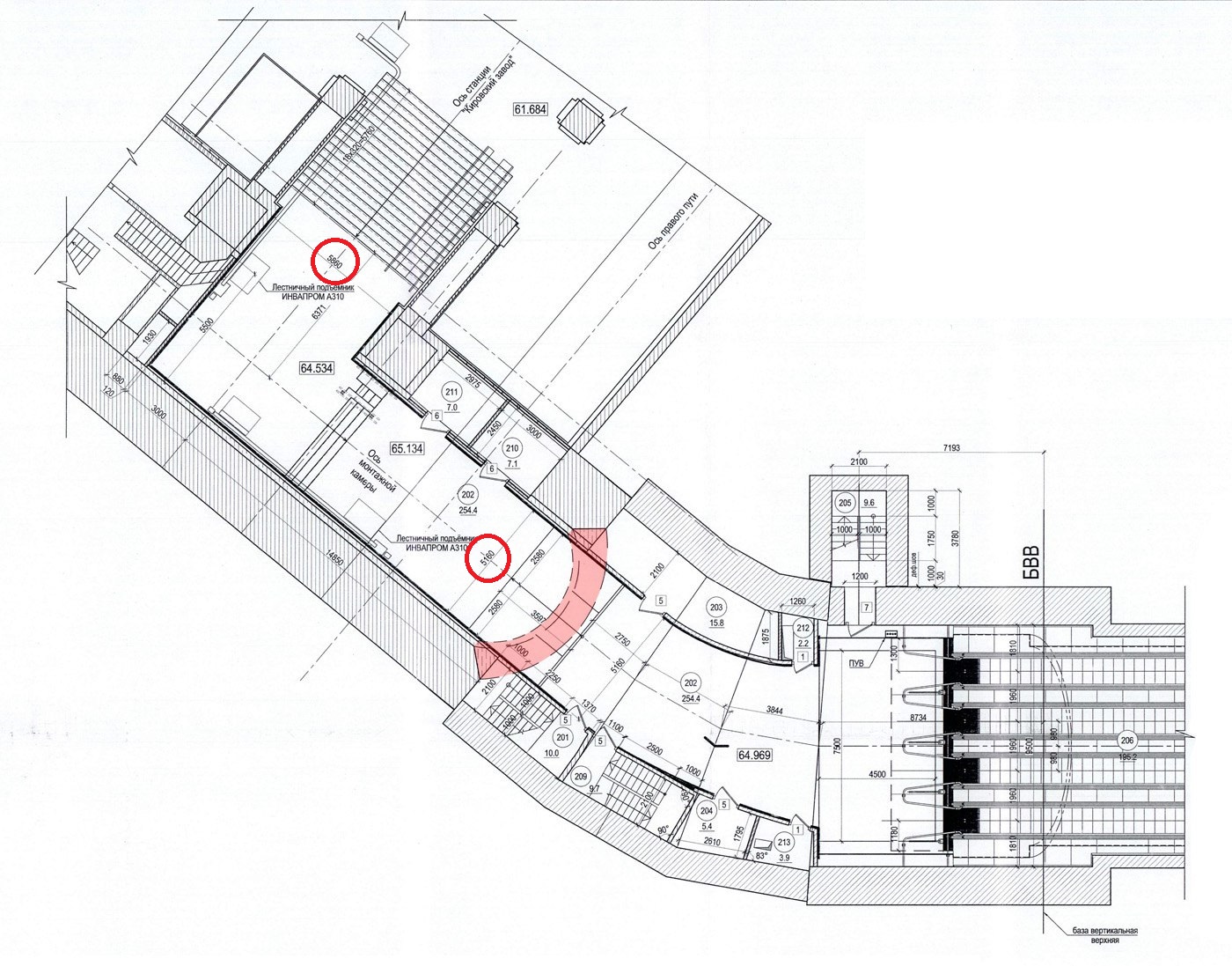
alex78rus
Сообщения: 279
Зарегистрирован: 28 янв 2010, 10:16
Станция метро: Автово

Re: Путиловская

Сообщение alex78rus »

GelezinisVilkas писал(а): 19 июн 2025, 09:14 Как-то он не намного шире чем со стороны Путиловской. Тоже 4 метра в ширину останется.
Ну не 4м а чуть больше 5,160м
Изображение PNG.jpg
Источник схемы: https://t.me/lmctrans
Аватара пользователя
GelezinisVilkas
Сообщения: 3572
Зарегистрирован: 15 май 2015, 12:19
Станция метро: Дунайская

Re: Путиловская

Сообщение GelezinisVilkas »

О, там ещё пандусы на лестницах и подъёмники, так что прохожая часть будет минимум на метр меньше. А все переживали за другую сторону.
Делать что угодно, только не лифт.
:twisted:
Ответить

Вернуться в «Строительство и проектирование»