Страница 1 из 6
Каретная (Обводный канал-2 — проектное название)
Добавлено: 08 июл 2019, 21:12
ooo
http://zakupki.gov.ru/epz/order/notice/ok504/view/common-info.html?regNumber=01722000058190000090172200005819000009
Выполнение работ по разработке предпроектной документации, включающей техническое и историко-культурное обоснование допустимых параметров размещения объекта капитального строительства
вестибюля станции «Обводный канал-2» на территории земельного участка по адресу:
г. Санкт-Петербург, Тамбовская улица, дом 8, для нужд Санкт-Петербурга.
КД_Тамбовская_д._8.doc (31.05.2019)
Комитет по развитию транспортной инфраструктуры Санкт-Петербурга подвел итоги открытого конкурса на разработку предпроектной документации, включающей техническое и историко-культурное обоснование допустимых параметров размещения объекта капитального строительства вестибюля станции «Обводный канал-2» на территории земельного участка по адресу: г. Санкт-Петербург, Тамбовская улица, дом 8. Начальная (максимальная)цена контракта составляет 9,627 млн рублей.
На участие в открытом конкурсе было подано три заявки – от
- ООО «Инжиниринговая компания «Город-А»,
- ООО «Аксиома» и
- Санкт-Петербургского государственного архитектурно-строительного университета (СПбГАСУ).
Победителем была признана заявка СПбГАСУ, предложившего выполнить работы за 8,349 млн рублей.
В рамках исполнения контракта подрядчику предстоит выявить предельные параметры будущего вестибюля станции «Обводный канал-2» на земельном участке по адресу: Тамбовская ул., д. 8,
- определить условия строительства объекта с учетом историко-культурных ограничений и требований режима охраны,
- подготовить эскизный проект архитектурных решений вестибюля.
- Также подрядчик в рамках исполнения контракта должен будет определить стоимость строительства объекта.
Срок завершения выполнения работ – 5 декабря 2019 года.
Re: Каретная (Обводный канал-2 — проектное название)
Добавлено: 18 окт 2019, 07:45
Gleb
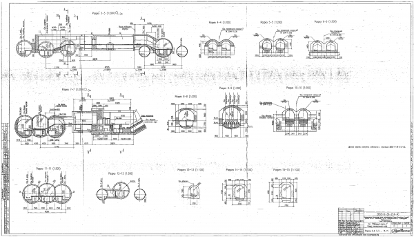
Добавлю сюда ссылки на схемы станционных узлов из проекта, который в соответствии с
государственным контрактом от 23.11.2015 г. ПМ-17/2015 в настоящее время корректируется.
download/file.php?id=34251&mode=viewdownload/file.php?id=34252&mode=view
Re: Каретная (Обводный канал-2 — проектное название)
Добавлено: 18 окт 2019, 15:20
GelezinisVilkas
Правилом хорошего тона на форуме считается вставлять изображения в пост, а не крепить ссылки на них.

- Обводный канал-2 (Каретная) схема станционного узла

- Обводный канал-2 (Каретная) схема станционного узла
Re: Каретная (Обводный канал-2 — проектное название)
Добавлено: 21 окт 2019, 23:59
Mill
Н-да... А могла быть, если уж не двухэтажная станция, то хотя бы кроссплатформенная пересадка. Теперь-то уже всё, поезд ушел.
Re: Каретная (Обводный канал-2 — проектное название)
Добавлено: 11 дек 2019, 14:06
Svjazist
КГИОП согласился на снос старинного флигеля на Тамбовской ради метро 09/12/2019 -
http://kanoner.com/2019/12/09/164667/КГИОП согласился на снос дореволюционного дворового флигеля на Тамбовской улице, 8. Он помешал разместить на этом месте вестибюль станции метро «Каретная» 6-й, Красносельско-Калининской линии.
О том, что здесь, рядом с автовокзалом, расположится вестибюль станции метро «Каретная», «Канонер» написал летом 2014 года. В границы проектирования попали благоустроенный сквер восточнее дома 42 по набережной Обводного канала и четыре здания. Одно из них дореволюционное — на Тамбовской улице, 8, литера Б.
На днях КГИОП выдал заключение о законности проекта вестибюля. Это будет здание высотой 15 метров. Документацией подтверждается, что планируется «демонтаж аварийного, в соответствии с техническим заключением, исторического здания». Официальный представитель комитета сказал «Канонеру», что речь о доме 8, литера Б, по Тамбовской. Восстанавливать его облик не планируется, поскольку закон о зонах охраны делать этого в отношении дворовых корпусов не требует.
Re: Каретная (Обводный канал-2 — проектное название)
Добавлено: 17 дек 2019, 16:29
Metroschemes
На вид - не очень примечательное здание с точки зрения архитектуры.
Re: Каретная (Обводный канал-2 — проектное название)
Добавлено: 17 дек 2019, 17:06
Svjazist
Metroschemes писал(а):На вид - не очень примечательное здание с точки зрения архитектуры.
Да и никаким фасадом не выходит на улицу, даже ни к одному дому не примыкает. Весь "сыр-бор" только из-за того, что оно дореволюционное, и ничего более. Но по каждому построенному до революции дому приходится принимать отдельное решение.
Re: Каретная (Обводный канал-2 — проектное название)
Добавлено: 21 дек 2019, 12:25
Horror
Если это не памятник архитектуры, то вопрос только в том, чтобы его расселить, а потом построить новое здание, чтобы оно внешне было похоже на старое. Как с Адмиралтейской в своё время поступили.
Тут другой вопрос, насколько удобно будет пассажирам протискиваться на Обводный и в "город" через узкую арку дома № 8 на Тамбовскую улицу? Тем, кому не нужно будет на автовокзал?
Re: Каретная (Обводный канал-2 — проектное название)
Добавлено: 22 дек 2019, 02:39
darkglare
Horror писал(а):потом построить новое здание, чтобы оно внешне было похоже на старое
зачем?

это уродливый клоповник из тех доходных домов, которые при царях строили для самых нищих работяг, желто-болезненного цвета, по безликости сопоставимый с панельной хрущобой. на Лиговке такой "красоты" полно, жалеть не о чем, пусть лучше достойный современный проект вестибюля сделают
Re: Каретная (Обводный канал-2 — проектное название)
Добавлено: 22 дек 2019, 08:27
Санёк
Наверняка бизнес-центр втюхают, и спрашивать не будут
Re: Каретная (Обводный канал-2 — проектное название)
Добавлено: 23 дек 2019, 12:51
MaksegZ
Там ТПУ нужен, чтобы в одном здании и автовокзал и ТЦ и метро, но у нас, конечно, как всегда все будет отдельными зданиями.
Re: Каретная (Обводный канал-2 — проектное название)
Добавлено: 23 дек 2019, 14:14
Svjazist
MaksegZ писал(а):Там ТПУ нужен, чтобы в одном здании и автовокзал и ТЦ и метро, но у нас, конечно, как всегда все будет отдельными зданиями.
Очень было бы не плохо так совместить - территория, где расположен автовокзал, довольно большая, и у КГИОП можно было бы запрашивать согласование уже по мЕньшему количеству домов, попадающих в район стройки. (Автовокзал, правда, всё грозились перенести на юг города, но, видимо, тоже не судьба).
Вообще-то не понятно такое размещение вестибюля - вход/выход со станции будет где-то во дворах. ИМХО, как правило, планировали так, чтобы было побольше свободного пространства перед входом/выходом, в т.ч. учитывая возможность возникновения чрезвычайных ситуаций, чтобы вестибюль своим фасадом выходил на улицу (станцию метро сразу видно, да и опять-таки на случай ЧС - для оперативного подъезда спецтранспорта).
P.S.: У кого-то рядом с домом сейчас консульство Таджикистана (Тамбовская, 10), а теперь еще будет и станция метро со своей спецификой "околометрошной" территории. Но зато можно будет сказать: "у меня метро - прямо во дворе".
Re: Каретная (Обводный канал-2 — проектное название)
Добавлено: 24 дек 2019, 10:26
Адмирал
Svjazist писал(а):Автовокзал, правда, всё грозились перенести на юг города, но, видимо, тоже не судьба.
Наверное, по той же причине, что не выносили ж/д, не всем удобно ездить до него через весь город, близость автовокзала к центру это некий "компромисс". Хотя фактор пробочности для самих автобусов тоже присутствует. Но тогда уже нужны хабы и на окраинах (Девяткино, Парнас, Шушары и пр.)
Если АВ сохранится на своём месте, что скорее всего и будет, вестибюль Каретной будет хоть как-то востребован - других объектов притяжения там нет, жилья и предприятий не так много (их всех влёгкую вывозит "Обводный канал-1")
Re: Каретная (Обводный канал-2 — проектное название)
Добавлено: 24 дек 2019, 13:21
Metroschemes
Автовокзал в центре нужен, но желательно где-нибудь поблизости от ЗСД: например около Приморской - тогда фактор пробок будет минимизирован.
Re: Каретная (Обводный канал-2 — проектное название)
Добавлено: 24 дек 2019, 13:41
MaksegZ
Приморская - это центр по-вашему?