mx писал(а):Объявлен конкурс на корректировку проекта второго выхода. Срок - 09.09.2020.
По результатам конкурса заключен государственный контракт от 19.06.2019 г. № ПМ-7/2019 с ОАО "НИПИИ "ЛЕНМЕТРОГИПРОТРАНС". Цена контракта - 90 048 174,47 руб. Срок выполнения - не позднее 09.09.2020 года.
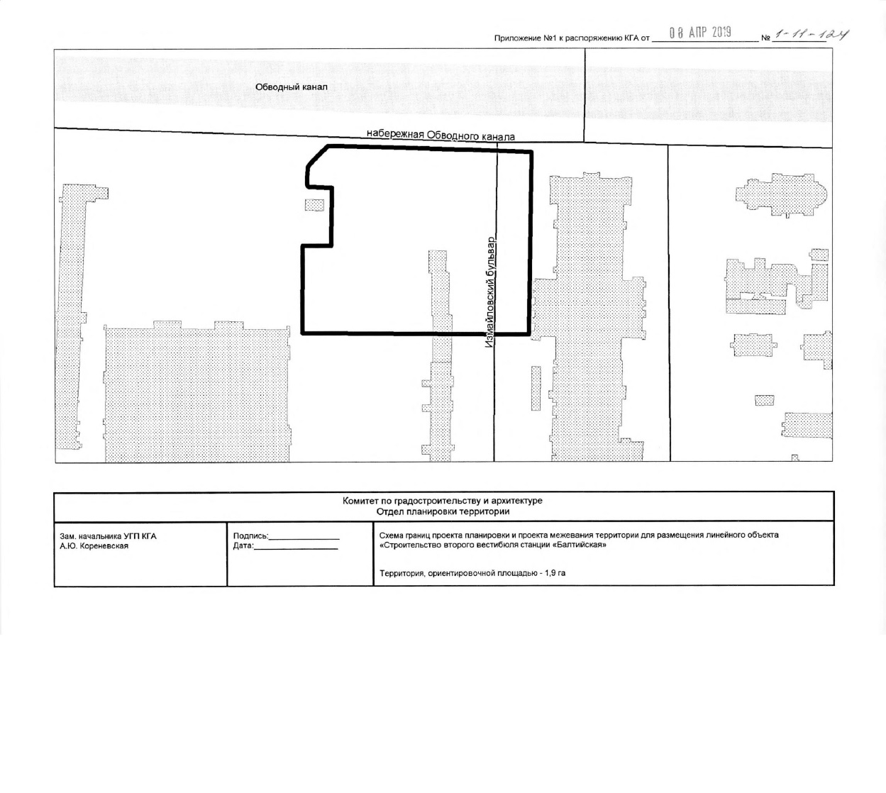
На прошлой неделе выданы 2 ордера ГАТИ на проведение работ по инженерно-геологическим изысканиям в районе будущего строительства.
Некоторые выдержки из размещенной документации (Программа выполнения инженерно-геологических изысканий):

